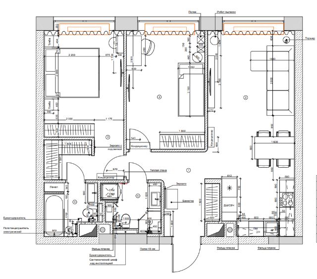
Продаётся 2-комнатная квартира в панельном доме серии И-155 (модификация И-155НБ), дом 2015 года постройки. Строили для военных. Общая площадь квартиры: 59,4 м2, жилая: 34,8 м2. Квартира с лоджией 4,1 м2, с хорошей планировкой. Высота потолков: 3 м. Кухню фактически можно использовать как гостиную, довольно просторная. Изолированные комнаты: 21,1 м2 и 13,7 м2, кухня: 10,7 м2, коридор: 9,7 м2. Раздельный санузел: ванная: 2,7 м2, туалет: 1,5 м2. Чистый подъезд, приличные соседи. В доме современная входная группа, лифты: 1 пассажирский и 2 грузовых. Свободная продажа, два взрослых собственника, более 5 лет в собственности, полная стоимость в договоре, без обременений и долгов.
Большая Очаковская улица — улица в Западном административном округе города Москвы в районе Очаково-Матвеевское с выездом на Аминьевское шоссе. По нему можно выехать на машине на проспект Генерала Дорохова и Мосфильмовскую улицу. Это прямая дорога к Третьему транспортному кольцу, до которого около 15 минут. Также до дома можно добраться через Мичуринский проспект. Все остановки и автобусы в шаговой доступности от дома.
От МЦД-4 ж/д ст. Озёрная 15 минут пешком;
От метро Озёрная (выход 4): автобусы: 329, с17 - 4 остановки 10 минут;
От метро Аминьевская (выход 5): автобусы: 329, с17 4 остановки 10 минут;
От метро Мичуринский проспект: автобус 120 - 6 остановок 20 минут;
От ж/д ст. Очаково: автобус с17 - 8 остановок;
От метро Юго-Западная: автобус 329 - 9 остановок 30-60 минут;
От метро Славянский бульвар: автобус 329 - 18 остановок
Маршруты и остановки:
Большая Очаковская улица, 2 400 метров
1-й Очаковский переулок 490 метров
Управа района Очаково-Матвеевское 60 метров
Автобусы: 329, с17, 120.
В пешей доступности работают государственные, частные, спортивные и музыкальные школы, детские сады, развивающие центры, фитнес-клуб, пункты выдачи заказов, кафе и рестораны, салоны красоты, два катка на Б. Очаковской. У метро Мичуринский проспект примерно в 2 км работает городская поликлиника 209.
Ближайший крупный торговый центр ТРЦ Фестиваль. Он расположен примерно в 3 км. На машине до него можно добраться за 7-10 минут. Также у Мичуринского проспекта работают торговые центры Любимый и Тиара. Есть два АШАНа у МКАДа.
В ЗАО столицы это популярный округ. Очаково-Матвеевское является довольно крупным районом ЗАО, который протянулся от Матвеевского леса на юге параллельно Можайскому шоссе до самого МКАД.
Западный административный округ Москвы считается благоприятным в плане экологии, находится в окружении сразу нескольких больших парков. Сразу за Аминьевским шоссе расположена часть природного заказника Долина реки Раменки, а в радиусе 2,5 км парк Олимпийской деревни, парк 50-летия Октября и Очаковский парк. Все эти рекреационные зоны не только обильно озеленены, но и облагорожены по всем современным стандартам.