


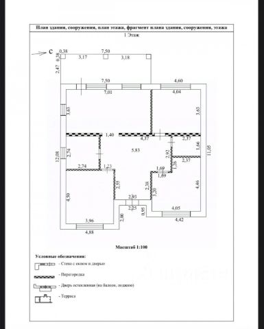
Временное снижение цены, пока интересующий нас объект стоит в продаже! Продается уютный 2 эт блочный дом , на монолитном фундаменте , с жби перекрытиями между этажами. лестница железобетонная. Фасад отделан термопанелями. Общ площадь 98,4кВ м +27,5кВ м терраса, прихожая, бойлерная +50кВ м мансарда. Участок 7,5 соток,ровный ,сухой сделана дренажная система . На 1 этаже расположены терасса, прихожая, бойлерная-построчная ,гардеробная, ванная комната, гостиная и кухня. На 2 эт две просторные спальни и небольшая комната( кабинет или детская) с выходом на мансарду. Вода централизованная с дополнительной водоочисткой. Септик ЕвроЛос( станция био- очистки). Отопление за счёт энергосберегающих конвекторов и теплых полов. Поселок газифицирован, есть возможность подключения к магистральному газу. В доме сделан качественный ремонт. Дом , по договоренности, продаётся с мебелью, техникой и прочими предметами интерьера. Перед домом парковка на несколько авто. На участке есть хоз блок, который можно переделать под гостевой домик, а также достаточно места под какое либо дополнительное строение, типа бани. Рядом горнолыжный курорт Сорочаны со своей инфраструктурой. Летом доступен пляж на водохранилище . В пешей доступности продуктовые магазины, аптеки. Поселок хорошо обустроен и полностью заселен. Круглосуточная охрана, въезд строго по пропускам. Детские и спортивные площадки. Собственная эксплуатационная служба. Зимой дороги чистятся, летом стрижется газон. Дому присвоен почтовый адрес, можно прописаться(МО) Полная стоимость в ДКП. Возможен торг! Риэлторов просьба не беспокоить!

































































































