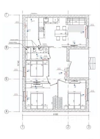
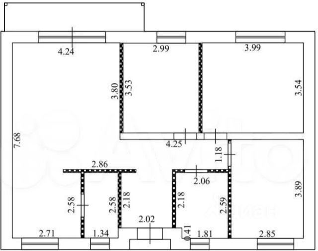
Арт. 101896898 ЦЕНА СНИЖЕНА ДЛЯ СРОЧНОЙ ПРОДАЖИ! Продается загородный жилой ДОМ 300 кв.м на участке 10 соток в ДНП Деулинская Слобода, ул. Мещанская, Сергиево-Посадский р-н, МО. Дом 300 кв.м, 3- х этажный Дом под чистовую отделку, построен в 2022 году из высококачественных материалов. Возведен на свайно - ростверковый фундамент размерами 12.7х11,6 м: бетонные сваи 56шт с шагом 1,5м. Стены толщиной 500 мм газосиликатный блок с облицовочным кирпичом. Первый этаж дополнительно утеплён кладкой стенового блока.. Сделано утепление второго и третьего этажей. Перекрытие пола бетонными плитами. Тёплый гараж с выходом из дома 8,5х6м. Дом предназначен для проживания большой семьи. В доме кухня гостиная, жилая комната, большая тёплая веранда 43.2м2 и холл 29.7м2 +котельная). На втором этаже четыре спальни 29.7+21.4+25.4+17.2м2 и два просторных совмещенных санузла на первом и втором этажах. На третьем этаже большая мансарда. Качественное остекление стеклопакетами 70 мм. Коммуникации: Электричество 24 кВт, 380 вольт Канализация септик (3 кольца) Вода поселковая артезианская скважина Отопление от электрического котла Магистральный газ по границе участка Участок: Вокруг дома сделана дренажная система, уложен рулонный газон Участок 10 соток правильной прямоугольной формы размерами - 20х50 м. Поселок круглогодичного проживания, возможна прописка. В темное время суток улицы освещены фонарями. За безопасным проживанием жителей следит охранная служба, а за чистотой и бесперебойной работой инженерных сетей - служба эксплуатации. До ближайшей автобусной остановки 5 мин пешком. До ТЦ "Капитолий" 2400 метров пешком. До поселка "Деулинская слобода" можно доехать на автомобиле по Ярославскому шоссе. . Один взрослый собственник. ПОЗВОНИТЕ, расскажем подробнее и договоримся об удобном времени показа. Центр недвижимости и права "ГрадомирЪ": Юридическое сопровождение сделки по стандартам Гильдии риэлторов Московской области; Работа по всем программам ипотечного кредитования всех банков; Проверка юридической чистоты сделки. Страхование сделок на 3 года; Индивидуальный подход к каждому клиенту.





















































































