Мы используем куки-файлы. Соглашение об использовании

Продается арендный бизнес, 461,3 м²

Площадь461,3 м²
Этаж14
Прибыль1 316 242 ₽/мес.
КатегорияТорговая площадь, свободное назначение, стрит ритейл и еще 1 категория...
Отчёт о привлекательности объектаУзнайте, насколько помещение и район подходят для вашего бизнеса
Что входит в отчёт
  • Охват населения
  • Пешеходный трафик
  • Автомобильный трафик
  • Средний бюджет семьи по району
  • Арендные ставки рядом
  • Точки притяжения
  • Конкуренты в радиусе 1 км
  • Рекомендации по выбору места для бизнеса
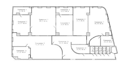
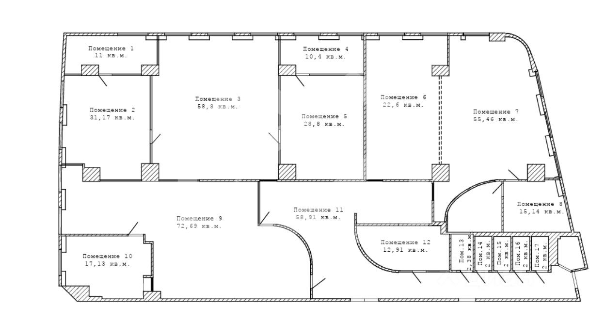
918464. Предлагаем офисное помещение с гарантированным арендным потоком, площадью 461,3 кв. м., расположенное на 14 этаже БЦ "Victory plaza" Преимущества объекта: - Бизнес-центр класса В+ - Шаговая доступность от станции метро Аэропорт (2 минуты пешком) - Арендатор: офис - Текущий арендный поток - МАП: 1 316 242 руб. - Панорамное остекление по всему периметру. - Свободная планировка с отделкой. Оперативно организуем для Вас показ и ответим на все вопросы. Свяжитесь с нами для получения дополнительной информации!
lock

Войдите или зарегистрируйтесь
для просмотра информации

Просматривайте условия сделки и всю информацию об объекте
Сохраняйте фильтры в поиске и не вводите заново
Доступ к избранному с любого устройства
Неограниченное добавление в избранное
Позвоните автору
Вам ответят на все вопросы
Остались вопросы по объявлению?
Позвоните владельцу объявления и уточните необходимую информацию.
  • Инфраструктура
  • Похожие рядом
Помощь надёжных риелторов
Риелтор партнёр Циан поможет купить или продать любую недвижимость
212 000 000 ₽
2 977 152 $
2 568 312
Цена за метр
459 571 ₽
Налог
НДС включен: 38 229 508 ₽
Агентство недвижимости
Документы проверены