Мы используем куки-файлы. Соглашение об использовании
Площадь2 230 м²
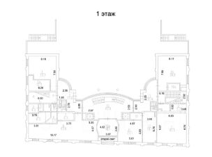
Этаж1 из 4
Отчёт о привлекательности объектаУзнайте, насколько помещение и район подходят для вашего бизнеса
Что входит в отчёт
  • Охват населения
  • Пешеходный трафик
  • Автомобильный трафик
  • Средний бюджет семьи по району
  • Арендные ставки рядом
  • Точки притяжения
  • Конкуренты в радиусе 1 км
  • Рекомендации по выбору места для бизнеса
Агентства просьба не беспокоить! Предлагается на продажу офис в нежилом, отдельно стоящем здании (за исключением помещения 805 м2) расположенном в Красносельском районе (ЦАО) на первой линии домов переулка Просвирин, в шаговой доступности от станций метро Сухаревская и Чистые пруды. Общая площадь здания : 3034 м² Продаваемая площадь лота : 2229 м² В собственности третьих лиц : 805 м² Общая площадь лота : 2229 м² Наземная площадь лота : 1947 м² Наземная без лестниц : 1797 м² Площадь кабинетов : 802 м² Поэтажные площади лота : Подвал : 282 из 891 м² (высота потолков 285) Цоколь : 521 из 717 м² (высота потолков 285) 1 этаж : 414 м² (высота потолков 300) 2 этаж : 341 м² (высота потолков 300) 3 этаж : 329 м² (высота потолков 300) 4 этаж : 343 м² (высота потолков 300) Земельный участок : 576 м² Вид права : аренда до 2030 года Тип договора : со множественностью лиц ВРИ : эксплуатации части здания под административные цели; эксплуатации части здания под гараж - Год постройки : 1997 - Наружные стены : монолитные - Перекрытия : монолитные - Пассажирские лифты : 2 шт. - Подземная парковка : 14 м/м Современное офисное здание. Цокольный этаж фактически является 1 уровнем здания. Главный вход в здание находится в цокольном этаже. Подземный паркинг на 14 мест находится в цокольном этаже, заезд в паркинг через ворота прямо в здании, рядом с главным входом. Предложение не является арендным бизнесом в текущем наполнении. Ведется поиск арендатора. Агентства просьба не беспокоить! >ID объекта - 53550
lock

Войдите или зарегистрируйтесь
для просмотра информации

Просматривайте условия сделки и всю информацию об объекте
Сохраняйте фильтры в поиске и не вводите заново
Доступ к избранному с любого устройства
Неограниченное добавление в избранное
Позвоните автору
Вам ответят на все вопросы
Остались вопросы по объявлению?
Позвоните владельцу объявления и уточните необходимую информацию.
  • Инфраструктура
  • Похожие рядом
Помощь надёжных риелторов
Риелтор партнёр Циан поможет купить или продать любую недвижимость
880 000 000 ₽
12 357 989 $
10 660 917
Цена за метр
394 619 ₽
Налог
УСН
Агентство недвижимости
Документы проверены
На Циан
15 лет
Объектов в работе
более 5000