Мы используем куки-файлы. Соглашение об использовании
Площадь825 м²
Этаж1 из 2
КлассC
Отчёт о привлекательности объектаУзнайте, насколько помещение и район подходят для вашего бизнеса
Что входит в отчёт
  • Охват населения
  • Пешеходный трафик
  • Автомобильный трафик
  • Средний бюджет семьи по району
  • Арендные ставки рядом
  • Точки притяжения
  • Конкуренты в радиусе 1 км
  • Рекомендации по выбору места для бизнеса
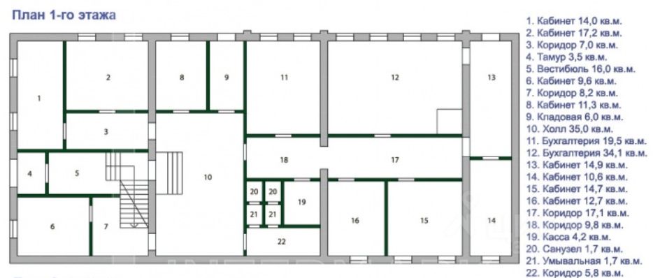
ID 6316. Отдельно стоящий, офисный особняк класса С, расположен в престижном деловом центре Москвы. Охраняемая территория. В ближайшем окружении офисы крупных банков и компаний, дипломатические представительства, кафе, рестораны, салоны красоты, торговые центры. Шаговая доступность всех центральных объектов, удобный подъезд. Имеется готовый проект реконструкции здания на 1100 м². Этажность: 2 этажа + мансарда Год постройки / реконструкции здания: 1878 г. / 2012 г. Высота потолка: 3.2 м, мощность: 60 кВт Коммуникации: Телефон, интернет, холодная, канализация, система пожаротушении. На каждом этаже по 2 санузла. Парковка: городская Intermark Real Estate - участник ассоциации AREA. Мы работаем в выходные и праздничные дни, будем рады вашим звонкам в любое время.
lock

Войдите или зарегистрируйтесь
для просмотра информации

Просматривайте условия сделки и всю информацию об объекте
Сохраняйте фильтры в поиске и не вводите заново
Доступ к избранному с любого устройства
Неограниченное добавление в избранное
Позвоните автору
Вам ответят на все вопросы
Остались вопросы по объявлению?
Позвоните владельцу объявления и уточните необходимую информацию.
  • Инфраструктура
  • Похожие рядом
Помощь надёжных риелторов
Риелтор партнёр Циан поможет купить или продать любую недвижимость
199 000 000 ₽
2 794 591 $
2 410 821
Цена за метр
241 213 ₽
Налог
УСН
Агентство недвижимости
Суперагент