Мы используем куки-файлы. Соглашение об использовании
Только на Циан
Общая площадь63,7 м²
Жилая площадь30 м²
Площадь кухни15 м²
Этаж16 из 17
Год постройки2024
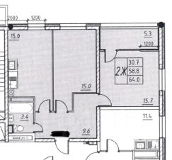
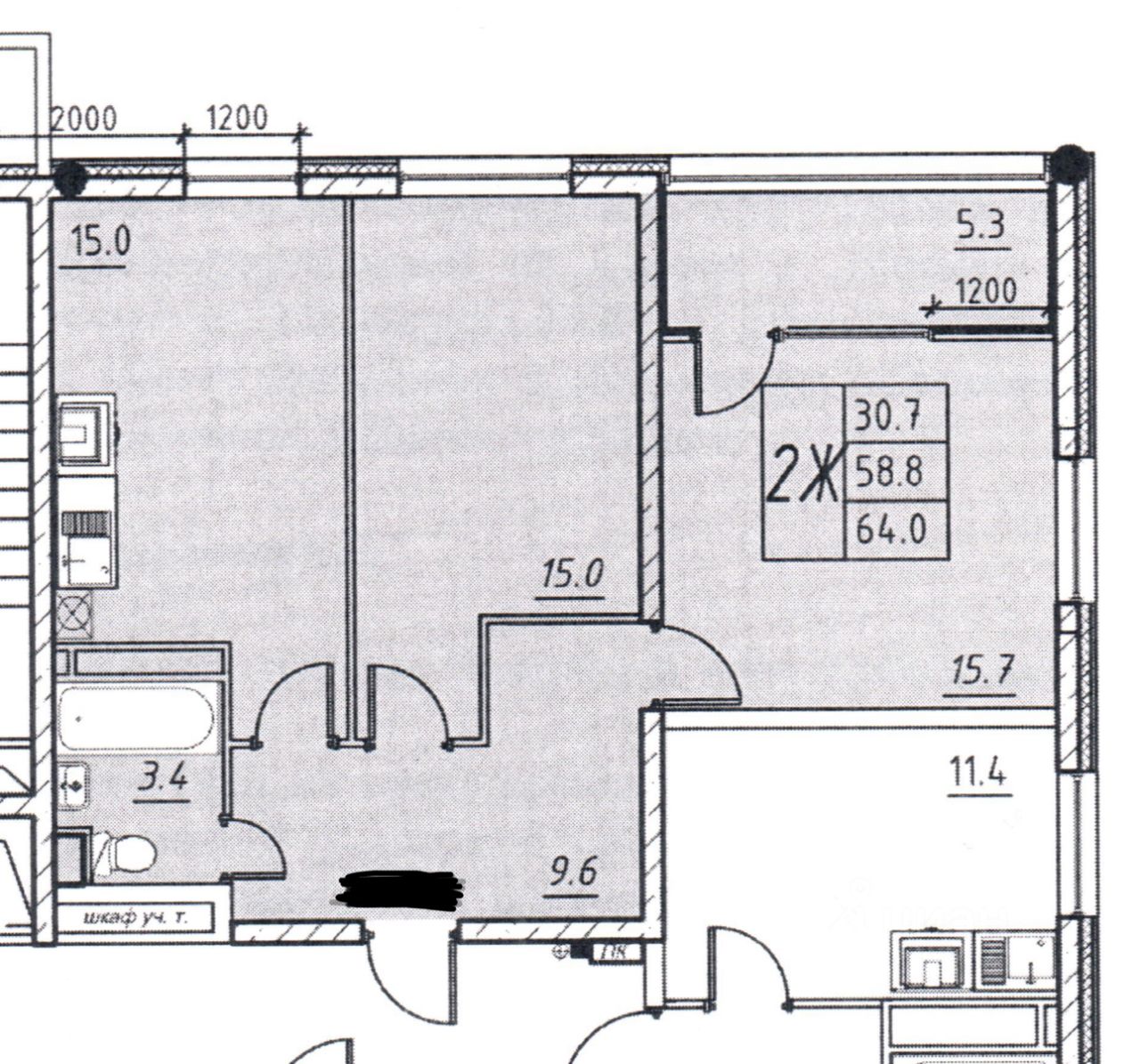
Продается просторная 2-комнатная квартира в новом доме, расположенном в городе Ивантеевка на Заводской улице. Общая площадь квартиры составляет 63,7 кв. м, жилая площадь — 30 кв. м, а кухня впечатляет размером в 15 кв. м. Квартира находится на 16 этаже 17-этажного дома, построенного в 2024 году. Из окон открывается прекрасный вид. Квартира предлагается без ремонта, что дает вам возможность создать интерьер своей мечты с нуля. Планировка включает 2-е изолированные комнаты , кухню-гостиную, совмещенный санузел, просторную лоджию, где можно обустроить зону отдыха или рабочее пространство. Дом новый, с современной наземной парковкой, где всегда найдется место для вашего автомобиля. Жилой комплекс оборудован всеми необходимыми коммуникациями, а современная архитектура и качественные материалы строительства обеспечат комфортное проживание. Район отличается развитой инфраструктурой: в шаговой доступности находятся школы, детские сады и различные магазины, что делает его идеальным вариантом для семей с детьми. Удобное транспортное сообщение позволяет быстро добраться до Москвы и других близлежащих городов. Квартира готова к продаже по договору купли-продажи, возможна ипотека. Все документы на квартиру в порядке, обременений нет. Это предложение — прекрасная возможность стать владельцем нового жилья в современном районе. Звоните и записывайтесь на просмотр. Будем рады показать вам эту замечательную квартиру и ответить на все ваши вопросы!
Позвоните автору
Вам ответят на все вопросы

О квартире

Тип жилья

Вторичка

Общая площадь

63,7 м²

Жилая площадь

30 м²

Площадь кухни

15 м²

Санузел

1 совмещенный

Балкон/лоджия

1 лоджия

Вид из окон

На улицу и двор

Ремонт

Без ремонта

О доме

Год постройки

2024

Строительная серия

Индивидуальный проект

Тип перекрытий

Нет информации

Парковка

Наземная

Отопление

Нет информации

Аварийность

Нет

Спросите умного помощника
Получите экспертное мнение о жилье

Расположение

Ипотечный калькулятор
  • Базовая
  • Семейная
  • ІТ-ипотека
  • 20.1%
  • 30%
  • 40%
  • 50%
лет
  • 10 лет
  • 20 лет
  • 30 лет
Загружаем предложения от застройщика и банков
Автор объявленияТатьяна Рябова
Суперагент
  • 3,7・3
  • 3 года 6 месяцев на ЦИАН
  • 3 объявления
  • 7 590 000 ₽
    Эксперт от ЦианаПомощь с поиском и сделкой
    Цена за метр
    119 152 ₽/м²
    Условия сделки
    свободная продажа
    Ипотека
    возможна
    Автор объявленияТатьяна Рябова
    Суперагент