Мы используем куки-файлы. Соглашение об использовании
Только на Циан
Общая площадь170 м²
Участок8 сот.
Материал домаЩитовой
Этажей в доме2
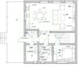
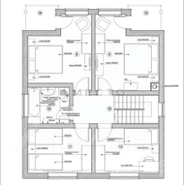
Объект 87. Элегантный новый дом 170 кв.м, 8 соток ИЖС.Загородный дом Casa Rossa изначально строился заказчиками для себя. В процессе планы изменились, но планку решили не снижать, поэтому в доме в основном установлены итальянская мебель, текстиль и декор. Ниже вся информация по дому, показ дома можем устраивать в любой удобный Вам день, пишите\звоните.О ДОМЕ:* Дом общей площадью 170 кв.м.* Пять спален 9,5 кв.м, 14 кв.м , 15,2 кв.м, 10,5кв.м и 10,5кв.м* На каждом этаже совмещенный санузел с душем - 5,7 м2 ( 1эт), с ванной - 5,5 м2 (2эт)* Гостиная с кухней 36 м2 свободной планировки с панорамными окнами с тройным стеклопакетом* Дом полностью готов к проживанию: встроенная кухня Scavolini с дорогой техникой, итальянская мебель в гостиной\спальнях, полностью готовые с\у, подключенные кондиционеры в спальнях и гостиной* Техническое помещение котельная\прачечная 5,2 м2* Веранда с уличной мебельюКОММУНИКАЦИИ:* Отопление электричество;* Горячее водоснабжение - от электрического бойлера;* Холодное водоснабжение - скважина;* Канализация септик с системой очистки;* Электроснабжение - централизованное от городской сети 15кВ* Газ проведен по периметру забораУЧАСТОК:* Участок ИЖС 8 соток (к.н. 50:13:0040228:126) правильной формы* Сделан профессиональный дренаж* По периметру огорожен забором* На участке посажен газон* Выделенное место под а\мПРЕИМУЩЕСТВА:* Закрытый охраняемый поселок Тишково Клаб, по периметру проведено видеонаблюдение* Комфортная благоустроенная территория: места для прогулок, детская и спортивная площадки* 30 км. до МКАД по Ярославскому шоссе* Рядом автобусная остановка до ж\д станции Правда ( 7мин на автобусе)* 5 минут езды до продуктового магазина-супермаркета "ВЕРНЫЙ", аптеки, хозяйственного. Все сервисы доставки ОZОN, Яндекс.* Для отдыха - 2 км до Пестовского водохранилища со всеми водными развлечениями и оборудованным спуском техники на воду; 10 мин езды до Учинского водохранилища* Зеленая локация: леса, поля, река, малая плотность застройки;* Возможности и инфраструктура для занятий мотоспортом, велосипедные и беговые маршруты;* Санатории рядом: Виктория ; Софрино Парк.* В непосредственной близости от поселка находится известный Глэмпинг парк "Под Небом" на берегу Пестовского волохранилища. Лот:1508. Лот:1508.
Позвоните автору
Вам ответят на все вопросы

О доме

Площадь

170 м²

Материал дома

Щитовой

Количество этажей

2

Количество спален

5

Об участке

Площадь

8 сот.

Статус участка

Индивидуальное жилищное строительство

Коммуникации и удобства

Санузел

В доме

Водоснабжение

Скважина

Отопление

Нет

Дополнительно

Охрана

Спросите умного помощника
Получите экспертное мнение о жилье

Расположение

Подпишитесь на объявления в этой локации
Мы сообщим, как только поблизости появится что‑нибудь новенькое
Ипотечный калькулятор
  • 20.1%
  • 30%
  • 40%
  • 50%
лет
  • 10 лет
  • 20 лет
  • 30 лет
Загружаем предложения от застройщика и банков
Хотите продать недвижимость?Разместите объявление на ЦианРазместить
25 000 000 ₽
Эксперт от ЦианаПомощь с поиском и сделкой
Цена за метр
147 059 ₽/м²
Агентство недвижимости
Риелтор
Суперагент
5,0・1