Мы используем куки-файлы. Соглашение об использовании
Вернуться в каталог агентств
11 месяцев на Циан
Азбука девелопмент
Опыт работы: не указан
СпециализацияПродажа недвижимости: коммерческая
Продажа коммерческой недвижимостиСмотреть все 2 предложения
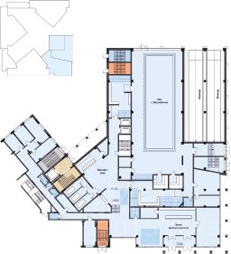
423 800 000 ₽119 999 ₽ за м²
Продается многоуровневый фитнес-центр с бассейном — современный 3-этажный фитнес-центр с бассейном в новом ЖК Азбука на Титова. Объект передан в долгосрочную аренду международному фитнес-оператору премиум-класса. Доступны различные варианты приобретения, включая ДДУ (214-ФЗ) с рассрочкой платежа. Ключевые параметры: Местоположение: ЖК Азбука на Титова (10 мин. от м. Ботаническая) Площадь: 3 531,7 м² (3 этажа) Стоимость: 120 000 руб./м² 423,8 млн руб. Срок ввода в эксплуатацию: июнь 2028 г. Первый арендный платеж: январь 2029 г. (арендные каникулы 6 месяцев) Инфраструктура фитнес-центра: • Оздоровительный 25-метровый бассейн; • Просторный тренажёрный зал; • Залы для групповых программ; • Зона SPA; • Детский клуб. Преимущества для инвестора: Гарантированный пассивный доход — все операционные расходы на арендаторе Надежный международный оператор с подтвержденной репутацией; Финансовая безопасность — покупка по 214-ФЗ Премиальное оснащение: профессиональные тренажеры, SPA, бассейн Потенциал роста стоимости — район активно развивается, аудитория 40 000 жителей в шаговой доступности. О локации Южная Ботаника: • Площадь застройки: 15,4 га • 8 партнеров-застройщиков • Единая архитектурная концепция • Перспективная численность населения: 22 000 человек • 4 многоуровневых паркинга для жителей и гостей на 1 986 мест • Развивающаяся инфраструктура: детский сад, скверы, кафе, магазины. Это Ваш шанс войти в проект на старте! Контакт для подробностей: Екатерина Специалист по коммерческой недвижимости
месяц назад
423 800 000 ₽119 999 ₽ за м²
Продается многоуровневый современный 3-этажный фитнес-центр в новом ЖК Азбука на Титова. Объект передан в долгосрочную аренду международному фитнес-оператору премиум-класса. Доступны различные варианты приобретения, включая ДДУ (214-ФЗ) с рассрочкой платежа. Ключевые параметры: Местоположение: ЖК Азбука на Титова (10 мин. от м. Ботаническая) Площадь: 3 531,7 м² (3 этажа) Стоимость: 120 000 руб./м² 423,8 млн руб. Срок ввода в эксплуатацию: июнь 2028 г. Первый арендный платеж: январь 2029 г. (арендные каникулы 6 месяцев) Инфраструктура фитнес-центра: • Оздоровительный 25-метровый бассейн; • Просторный тренажёрный зал; • Залы для групповых программ; • Зона SPA; • Детский клуб. Преимущества для инвестора: Гарантированный пассивный доход — все операционные расходы на арендаторе Надежный международный оператор с подтвержденной репутацией; Финансовая безопасность — покупка по 214-ФЗ Премиальное оснащение: профессиональные тренажеры, SPA, бассейн Потенциал роста стоимости — район активно развивается, аудитория 40 000 жителей в шаговой доступности. О локации Южная Ботаника: • Площадь застройки: 15,4 га • 8 партнеров-застройщиков • Единая архитектурная концепция • Перспективная численность населения: 22 000 человек • 4 многоуровневых паркинга для жителей и гостей на 1 986 мест • Развивающаяся инфраструктура: детский сад, скверы, кафе, магазины. Это Ваш шанс войти в проект на старте! Контакт для подробностей: Екатерина Специалист по коммерческой недвижимости
месяц назад