Мы используем куки-файлы. Соглашение об использовании

Дом по адресу Домодедовская улица, 20К2

Москва, район Орехово-Борисово Северное

Орехово
4 мин.
Домодедовская
16 мин.
Красногвардейская
5 мин.
Москворечье
6 мин.
Царицыно
6 мин.
Нижние Котлы
14 мин.

Год постройки

1998

Тип дома

Панельный

Тип перекрытий

Железобетонные

Высота потолков

2.64 м

Этажность

17

Парадных

2

Расположение

Тренды на рынке недвижимости

Делаем выводы на основе объектов в этом и соседних домах
Динамика цен
Количество комнат
Период
Средняя цена за м²
368 257 ₽/м²
Изменение цены за всё время
+118 304 ₽/м²+47%
Этот дом
Соседние дома
Динамика спроса и предложения
Рынок продавца
Спрос за год
+256%
Предложение за год
−38%
Спрос растёт, a предложение падает: ажиотаж со стороны покупателей создает хорошие условия для продавцов, потому что объекты в дефиците
Спрос
Предложение
График показывает значения относительно прошлогоднего уровня, принятого за 100%

Объявления в этом доме

Хотите жить в этом доме?
Подпишитесь на новые объявления о продаже или аренде квартир

История объявлений в этом доме

Цена
На Циан
Опубликовано
Снято
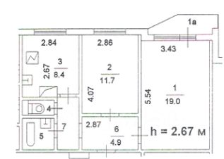
50,8 м², 2-комн., 14/17 этаж
19,5 млн ₽
383 858 ₽/м²

5 дней
31 мар 2026
5 дней на Циан
Активно
38 м², 1-комн., 3/17 этаж
Снято с публикации
12,9 млн ₽
339 473 ₽/м²

62 дня
7 окт 2024
62 дня на Циан
22 дек 2024
50,8 м², 2-комн., 14/17 этаж
Снято с публикации
16,5 млн ₽
324 803 ₽/м²

34 дня
2 мая 2024
34 дня на Циан
8 июн 2024

Управляющая компания

ГБУ "ЖИЛИЩНИК РАЙОНА ОРЕХОВО-БОРИСОВО СЕВЕРНОЕ"
Россия, Москва, микрорайон К
Время работы
Пн–Чт
08:00-12:0012:45-17:00
Пт
08:00-12:0012:45-15:45
Сб–Вс
Закрыто
Руководитель
Бадаев Вильдан Равильевич
  • 🔷 Тип дома (серия) — П-44
  • 🔷 Технология строительства — панельный
  • Собрали для вас основную информацию о доме по адресу Домодедовская улица, 20К2:
  • 🔷 Этажность — 17
  • 🔷 Пассажирских — 4
  • Ⓜ️ Орехово, 4 минуты пешком
  • 📍 2 поликлиники и больницы
  • Ⓜ️ Домодедовская, 16 минут пешком
  • Рядом с домом по адресу Домодедовская улица, 20К2 в пешей доступности находится:
  • 📍 26 магазинов
  • ✅ Минимальная площадь квартиры: 50,8 м²
  • ✅ Объект наибольшей площади: 50,8 м²

Для просмотра актуальных объявлений в доме по адресу Домодедовская улица, 20К2 перейдите на подходящий раздел: