


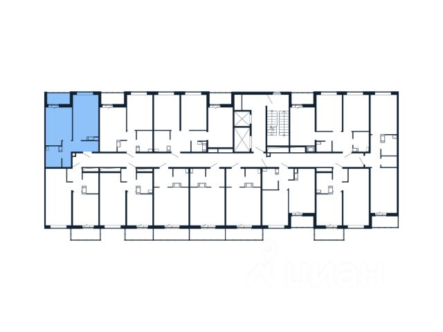
175 443 ₽/м²
Прямая продажа от застройщика! Готовая Евро-двушка 32.5 кв.м с кухней 13.09 кв.м с предчистовой отделкой на 3 этаже в сданном ЖК "Полис Лаврики". Скидка до 400 000₽, семейная ипотека от 4,5% без удорожания квартиры на весь срок кредита, рассрочка до 18 месяцев! Ипотека всем 8% на 7 лет! ЖК "Полис Лаврики" 12-этажный квартал в западном Мурино, в 5 минутах от метро "Девяткино". Два корпуса с закрытыми дворами без машин создают безопасное пространство для отдыха. Квартал выполнен в скандинавском стиле с элементами хюгге: уютные беседки, деревянная мебель и тёплое освещение в закрытых дворах. В подъездах просторные колясочные и сквозные выходы во двор и на улицу. Идеальное сочетание транспортной доступности, развитой инфраструктуры и близости загородных курортов. ДОМ СДАН!












































































































































