


422 340 ₽/м²
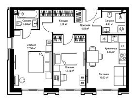
Продаётся 2-к квартира 52.7 кв.м. на 18-м этаже 51 этажного дома. Без отделки. Срок сдачи: 1 кв. 2028 г. Жилой комплекс "СВЕТ" — воплощение современного комфорта и архитектурного изящества, созданное девелопером Dominanta в сотрудничестве с известным бюро СПИЧ. Комплекс представляет собой элегантное 52-этажное здание, расположенное в Западном Дегунино, на Дмитровском шоссе, 83А. Удачное местоположение обеспечивает удобство для жителей: станция метро "Селигерская" находится в пешей доступности, что делает путь в центр Москвы быстрым и комфортным. Транспортная доступность: - 5 минут пешком до станции метро "Селигерская" - 15 минут на машине до ТТК - 16 минут на транспорте до станции МЦД "Моссельмаш" Квартиры бизнес-класса в ЖК "СВЕТ" сочетают функциональность и эстетическое совершенство. Панорамные окна наполняют жилые пространства естественным светом и открывают захватывающие виды на мегаполис. Каждый житель дома получит доступ к бесплатной клубной инфраструктер SocialHUB. Для бизнес-задач и запуска личных проектов хоум-офис c рабочими станциями, переговорными и креативной студией. Для отдыха и формирования новых социальных связей ивент-пространство, которое подойдет для вечеринки, кинопоказа или паблик-тока. Для новых побед зоны для занятия киберспортом. И главное SocialHUB полностью бесплатен для жителей, все расходы на его содержание покрываются застройщиком. Территория проекта "СВЕТ" включает несколько сценарных зон: ландшафтный парк с шаговой тропой, спортивная зона, открытый амфитеатр, двухуровневая детская площадка, уличные рабочие станции и беседки для отдыха. Сложный рельеф с искусственными холмами и живыми изгородям позволяет эффективно разделить пространство на активные зоны и уединённые "кабинеты" для работы, отдыха или медитации. В ЖК "СВЕТ" каждый найдет арену для своей энергии. Для любителей динамичных игр — павильон для падел (модного микса тенниса и сквоша). Рядом — площадка для стритбола и столы для пинг-понга, где можно устроить соседский турнир! И, конечно, абсолютный мастхэв — зона воркаут для функциональных тренировок под открытым небом. У входа в жилой комплекс гостей встречается арт-объект, разработанный Студией Артемия Лебедева. Его мягкий, волнообразный силуэт напоминает разлитый свет. С заходом солнца арт-объект оживает благодаря светоотражающим материалам его форма становится динамичной и задает настроение всему пространству. Застройщик ООО "СЗ "Лазурит". ИНН 7714477497. ОГРН 1217700497112. Проектная декларация на сайте наш.дом.рф. Предложение не является публичной офертой.

































































































































































