


361 801 ₽/м²
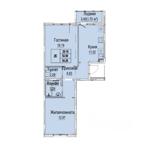
Дополнительная скидка в офисе продаж! Продается уютная 2-комн. квартира площадью 55,6 кв.м на 5 этаже жилого комплекса бизнес-класса Войс. Общая площадь: 55,6 кв.м., жилая: 35,5 кв.м., площадь кухни-гостиной: 17,3 кв.м., высокие потолки: 3,12 м., санузел совмещенный. О проекте: Войс. Высокие стандарты жизни Мы уверены, что высокие идеалы неизменно помогают достигать высот. Создавая Войс, мы ориентировались на людей с высокими требованиями к качеству и безупречным вкусом. Башни жилого комплекса, сочетают элегантную форму с динамичной геометрией фасадов, устремляются ввысь и отвечают самым высоким стандартам строительства. Технологичность, воплощенная в архитектуре - это ваш, собственный Войс. Преимущества локации Близость к метро Текстильщики, БКЛ и МЦК Новохохловская (10 мин) Рядом природный заповедник и конно-спортивная база Кузьминки-Люблино Будущее окружение Проект Южный порт - Текстильщики с деловым центром Сити-2 Небоскребы высотой до 300м Культурный центр с амфитеатром Променад вдоль Москвы-реки и яхт-клуб Архитектура Проект от Архитектурной мастерской Алексея Ильина Две перпендикулярные башни с арочными вершинами Высокая башня: светло-серый металл Низкая башня: терракотовая керамика Благоустройство Внешняя зона: парковки, магазины, кафе Внутренний двор: закрытая территория с озеленением Шумозащитный экран Сезонное озеленение Встречи на высоте Гранд-лобби высотой 8м Дизайнерская мебель Умные скоростные лифты Услуги Детский центр с игровой зоной Фитнес-студия для жителей Продается 2-комнатная квартира от застройщика 3SGroup в Москве.





















































































































































