


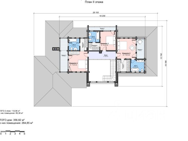
Премиум вилла LERMONTOV в стиле шале фахверк 373,1 м² на участке 16,4 соток с вековыми елями и личной акваторией 3,6 сотки в КП Ели Estate, Пятикратном победителе премии Поселок Года. ЗВОНИТЕ или НАПИШИТЕ свой номер телефона в Циан сообщениях и Вы получите: презентацию дома, планировку, генплан посёлка, консультацию и ответы на ваши вопросы от эксперта поселка. В доме: 4 спальни с собственными удобствами, детская с игровой-кинотеатром на 2 ярусе, холл вдоль всего дома на 23 м², просторная кухня-гостиная на 39,8 м² с видом на каскад прудов, мини спа, сауна и соляная стена, постирочная и котельная. Особенности: 195 м² терраса с 4 выходами, панорамные окна в пол по всему периметру дома, 5 метров высота потолков в коньке кровли, пожизненная гарантия и сервисное обслуживание, система умный дом позволяет управлять виллой на месте и удаленно. 2 вековых ели и ландшафт из 100+ деревьев на участке, собственный выход к воде, летняя кухня, пирс, барбекю и костровая зона. Уличное освещение по 8 сценариям. Зеленая изгородь из туй, елей и кедров. ПЛАНИРОВКА Общие помещения: терраса с 4 выходами (195), кухня гостиная (39,8), холл (23), мини спа, сауна, соляная стена и санузел (4,6), прихожая (5,2), санузел, лапомойка (3,2) Технические помещения: котельная (5,1), постирочная (5,4). Мастер-блок: спальня 1 (15,6) с гардеробной (6,1) и ванной комнатой (6,9) Детская (13,3) c игровой-кинотеатром на 2 ярусе (19,4) Спальня 2 (15,4) Спальня 3 (13,3) МАТЕРИАЛЫ И БРЕНДЫ Окна: Gmax, TopLT, Vision Light. Сантехника: Grocenberg, Ceramica Nova, Bettoserb, Abber. Кухня: кухонная мебель по индивидуальному заказу, столешницы из дуба, оникса и карагача, кухонный остров из керамогранита, оникса и слеба карагача. Бытовая техника: винный шкаф, посудомоечная машина, духовой шкаф, СВЧ и холодильник Bosch, паровой шкаф, 5 телевизоров, проигрыватель для пластинок, проектор, телескоп. ИНЖЕНЕРИЯ И КОММУНИКАЦИИ Все инженерные системы премиум марки REHAU, индивидуальный проект всей инженерии с управлением по QR коду. 151,1 м² общая площадь теплых полов с системой обогрева REHAU. Вилла оснащена системами: рекуперации(сохранения тепла), приточно-вытяжной вентиляции, увлажнения, кондиционирования, охлаждения, обеспыливания, управление микроклиматом по индивидуальному проекту. О ПОСЕЛКЕ Ели Estate — это клубный эко-поселок в 60 мин от МКАД по Новой Риге и скоростной М-11 "Нева", X5 победитель премии Поселок года, признан самым экологичным в России. 12 ГА инфраструктуры: Каскад прудов 1,5 ГА, Песочный пляж, Теннисный корт, Вертолетная площадка, Продуктовый магазин, Фермерский мини рынок, Банный комплекс, Корт для сквоша и падел тенниса, Клабхаус, Детский игровой комплекс, Фитнес клуб, Workout зона, Клаб хаус, Пруд для рыбалки, Костровая зона. ЗВОНИТЕ или НАПИШИТЕ свой номер телефона в Циан сообщениях и Вы получите: презентацию дома, планировку, генплан посёлка, консультацию и ответы на ваши вопросы от эксперта поселка! Классный большой дом класса Пятницкое шоссе.







































































































































