


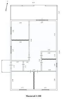
РАБОТАЕТ СЕМЕЙНАЯ ИПОТЕКА 6% Дом Идеал 121 в поселке Рижский Парк Дом 121 кв. м на участке 7 соток. В доме кухня-гостиная площадью 34 кв. м с выходом на террасу 26 кв. м, три комнаты 12 кв. м, 12 кв. м и 14 кв. м, а также санузел, техническое помещение, холл и тамбур. Дом под ключ Дом полностью готов есть все необходимое для комфортного проживания круглый год. Коммуникации: - Вода скважина на участке, водонагреватель, вода проведена в кухню и санузел. В санузле - душевая кабина, раковина, унитаз, смесители. - Канализация локальное очистное сооружение. - Электричество 15 кВт, свет, розетки и выключатели. - Отопление электрическое, радиаторы, антифриз в системе отопления. Дом: Дом построен по каркасной технологии из пиломатериалов камерной сушки с утеплением 200 мм (стены, пол и потолок). - Фундамент свайный. - Крыша кликфальц. - Стены внутри евровагонка, снаружи кликфальц/имитация бруса. - Металлическая входная дверь, деревянные межкомнатные двери, пластиковые стеклопакеты. - Ограждение евроштакетник с калиткой и откатными воротами. Сделка под ключ Домоведовъ берет на себя все заботы, чтобы Ваш путь к своему дому был простым, быстрым и приятным. Мы предлагаем лучшие способы приобретения жилья Семейная ипотека, Базовая ипотека, Военная ипотека, IT-ипотека, материнский капитал, Херсонский сертификат, Жилищный сертификат или полная единовременная оплата. Работаем с использованием эскроу-счетов это значит, что Ваши деньги надёжно защищены. Все этапы сделки проходим вместе с Вами помогаем оформить ипотеку, готовим документы и делаем все, чтобы Вы стали обладателем своего дома с легкостью и в кратчайшие сроки. Рижский Парк Рижский Парк поселок в 55 км от МКАД по Волоколамскому или Новорижскому шоссе в городском округе Истра. Территория в 1,9 га объединяет 25 домов в едином архитектурном стиле, которые полностью готовы для проживания круглый год. Строительством проекта занимается компания Домоведовъ. В поселке есть бульвар, смотровая площадка, велодорожка, беседки, костровище, детские площадки, зоны отдыха, дороги, освещение и охрана. Рижский Парк бережно вписан в естественный ландшафт. Вокруг лес, на границе с лесом река Чернушка, а в 15 минутах на автомобиле река Истра и Истринское водохранилище. В 26 минутах на автомобиле или 34 минутах на автобусе находится ж/д станция Истра. Остановка расположена в 26 минутах пешком. От ж/д станции Истра до метро Волоколамская 50 минут на электричке, до Ленинградского, Ярославского и Казанского вокзалов 1 ч 20 минут. Ближайшая школа и детский сад находятся в 10 минутах на автомобиле или 7 минутах на автобусе. Магазин в 8 минутах на автомобиле. До центра города Истра можно доехать за 26 минут на автомобиле или 34 минуты на автобусе. Будем рады показать Вам дом и поселок. Звоните и записывайтесь на просмотр! Продам дом в Московской области, можно за материнский капитал.
























































































































































