Мы используем куки-файлы. Соглашение об использовании
Помещение свободного назначения, 58 м²
Площадь58 м²
Этаж1 из 1
ПомещениеСвободно
Отчёт о привлекательности объектаУзнайте, насколько помещение и район подходят для вашего бизнеса
Что входит в отчёт
  • Охват населения
  • Пешеходный трафик
  • Автомобильный трафик
  • Средний бюджет семьи по району
  • Арендные ставки рядом
  • Точки притяжения
  • Конкуренты в радиусе 1 км
  • Рекомендации по выбору места для бизнеса
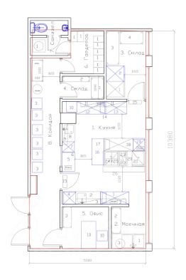
Помещение идеально подойдет под пищевое производство, dark kitchen. готовы рассмотреть др виды деятельности Помещение располагается рядом с метро (3 мин пешком) в торговом центре, высокая проходимость. Есть необходимое оборудование под пищевое производство. Ремонт свежий, оборудование было в бережной эксплуатации год. Помещение состоит из кухни, моечной, складов, офиса, гардеробной, санузла, места для ожидания курьеров. Доступ к помещению 24/7. 67 кВт мощности. Вытяжка на фасад. Есть горячая вода. В стоимость не включены ку (около 20000 в мес). По запросу вышлю видео и перечень оборудования. Оперативный показ. Прозрачная сделка, все документы предоставим.
lock

Войдите или зарегистрируйтесь
для просмотра информации

Просматривайте условия сделки и всю информацию об объекте
Сохраняйте фильтры в поиске и не вводите заново
Доступ к избранному с любого устройства
Неограниченное добавление в избранное
Позвоните автору
Вам ответят на все вопросы
Остались вопросы по объявлению?
Позвоните владельцу объявления и уточните необходимую информацию.
  • Инфраструктура
  • Похожие рядом
  • Тип зданияМногофункциональный комплекс
  • Общая площадь58 м²
Помощь надёжных риелторов
Риелтор партнёр Циан поможет купить или продать любую недвижимость
Автор объявленияТатьяна Тетенёва
Суперагент
  • 3 года 10 месяцев на Циане
  • 3 объявления
  • 170 000 ₽/мес.

    Субаренда (от года), предоплата за 1 месяц

    2 234 $/мес.
    1 901 /мес.
    Цена за метр
    35 173 ₽ в год
    Налог
    НДС включен: 30 655 ₽
    Комиссия
    нет
    Коммунальные платежи
    не включены
    Эксплуатационные расходы
    включены
    Автор объявленияТатьяна Тетенёва
    Суперагент