Мы используем куки-файлы. Соглашение об использовании
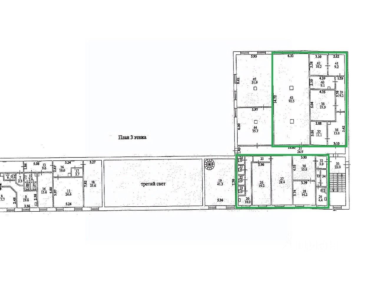
Площадь289,2 м²
Этаж3 из 3
Отчёт о привлекательности объектаУзнайте, насколько помещение и район подходят для вашего бизнеса
Что входит в отчёт
  • Охват населения
  • Пешеходный трафик
  • Автомобильный трафик
  • Средний бюджет семьи по району
  • Арендные ставки рядом
  • Точки притяжения
  • Конкуренты в радиусе 1 км
  • Рекомендации по выбору места для бизнеса
Территория ОАО ПО "Даниловский строительный завод" Предлагается в аренду от собственника офисный блок площадью 289,20 м2 (НЕТ ЦЕНТРАЛЬНОГО ОТОПЛЕНИЯ, НЕТ ЛИФТА, НУЖНО ДЕЛАТЬ РАЗВОДКУ ЭЛЕКТРИЧЕСТВА). Отдельный вход, с/у, несколько кабинетов. Планировка кабинетная, состояние помещения ТРЕБУЕТСЯ КАПИТАЛЬНЫЙ РЕМОНТ. Назначение помещения холодный склад. Высота потолков 3,0м, 3-й этаж. Парковка на территории за дополнительную плату. Въезд на территорию платный (пропускной режим). Интернет- провайдер Сити-телеком. Территория БП находится под круглосуточной охраной и видеонаблюдением. Проведены все коммуникации, контроль доступа. Режим работы круглосуточный. Административное здание расположено в непосредственной близости от метро Тульская (10 минут пешком). Договор аренды на 11 месяцев. Обеспечительный взнос 2-е месячные арендные платы. Юридический адрес НЕ предоставляется. Отдельно оплачиваются коммунальные платежи, клининг. Арендная ставка включает НДС. При необходимости ремонта предоставляются арендные каникулы. Лот 000006025
lock

Войдите или зарегистрируйтесь
для просмотра информации

Просматривайте условия сделки и всю информацию об объекте
Сохраняйте фильтры в поиске и не вводите заново
Доступ к избранному с любого устройства
Неограниченное добавление в избранное
Позвоните автору
Вам ответят на все вопросы
Остались вопросы по объявлению?
Позвоните владельцу объявления и уточните необходимую информацию.
  • Инфраструктура
  • Похожие рядом
Помощь надёжных риелторов
Риелтор партнёр Циан поможет купить или продать любую недвижимость
Управляющая компанияПрофис-недвижимость
Суперагент
  • 14 лет 9 месяцев на Циане
  • 307 объявлений
  • 196 415 ₽/мес.
    2 715 $/мес.
    2 336 /мес.
    Цена за метр
    8 150 ₽ в год
    Налог
    НДС включен: 35 419 ₽
    Комиссия
    нет
    Коммунальные платежи
    не включены
    Эксплуатационные расходы
    включены
    Управляющая компанияПрофис-недвижимость
    Суперагент