Мы используем куки-файлы. Соглашение об использовании

Сдается торговая площадь, 301,7 м²

Площадь301,7 м²
Этаж1 из 8
ПомещениеСвободно
Отчёт о привлекательности объектаУзнайте, насколько помещение и район подходят для вашего бизнеса
Что входит в отчёт
  • Охват населения
  • Пешеходный трафик
  • Автомобильный трафик
  • Средний бюджет семьи по району
  • Арендные ставки рядом
  • Точки притяжения
  • Конкуренты в радиусе 1 км
  • Рекомендации по выбору места для бизнеса
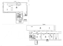
Предлагается в аренду помещение свободного назначения на первой линии домов, общей площадью 301,7 кв.м.(1 этаж 100,0 кв.м., подвал 201,7 кв.м.) Открытая планировка с отдельным входом. Имеется дополнительный вход со стороны двора и зона погрузки/разгрузки с дебаркадером. Большие витринные окна. Хорошая визуальная доступность. Презентабельный внешний вид , хорошее торговое окружение и рекламный потенциал. Высота потолков 4,75 м, электрическая мощность 50 кВт.
lock

Войдите или зарегистрируйтесь
для просмотра информации

Просматривайте условия сделки и всю информацию об объекте
Сохраняйте фильтры в поиске и не вводите заново
Доступ к избранному с любого устройства
Неограниченное добавление в избранное
Позвоните автору
Вам ответят на все вопросы
Остались вопросы по объявлению?
Позвоните владельцу объявления и уточните необходимую информацию.
  • Инфраструктура
  • Похожие рядом
  • Тип зданияЖилой дом
  • Площадь участка0 сот.
  • Общая площадь301,7 м²
Приточная вентиляция
Местное кондиционирование
Центральное отопление
Сигнализация
Помощь надёжных риелторов
Риелтор партнёр Циан поможет купить или продать любую недвижимость
Отдел арендыЦЕНТР ЮВЕЛИР
Суперагент
  • 14 лет 11 месяцев на Циане
  • 10 объявлений
  • 600 000 ₽/мес.

    Прямая аренда (от года), минимальный срок аренды 11 месяцев, доступны арендные каникулы, обеспечительный платёж 600000 ₽, предоплата за 1 месяц

    7 975 $/мес.
    6 762 /мес.
    Цена за метр
    23 865 ₽ в год
    Налог
    НДС включен: 108 196 ₽
    Комиссия
    нет
    Коммунальные платежи
    не включены
    Эксплуатационные расходы
    не включены
    Отдел арендыЦЕНТР ЮВЕЛИР
    Суперагент