Мы используем куки-файлы. Соглашение об использовании

Офис класса А в БЦ Lucky

Площадь121 м²
Этаж2 из 7
ПомещениеСвободно
КлассA
Отчёт о привлекательности объектаУзнайте, насколько помещение и район подходят для вашего бизнеса
Что входит в отчёт
  • Охват населения
  • Пешеходный трафик
  • Автомобильный трафик
  • Средний бюджет семьи по району
  • Арендные ставки рядом
  • Точки притяжения
  • Конкуренты в радиусе 1 км
  • Рекомендации по выбору места для бизнеса
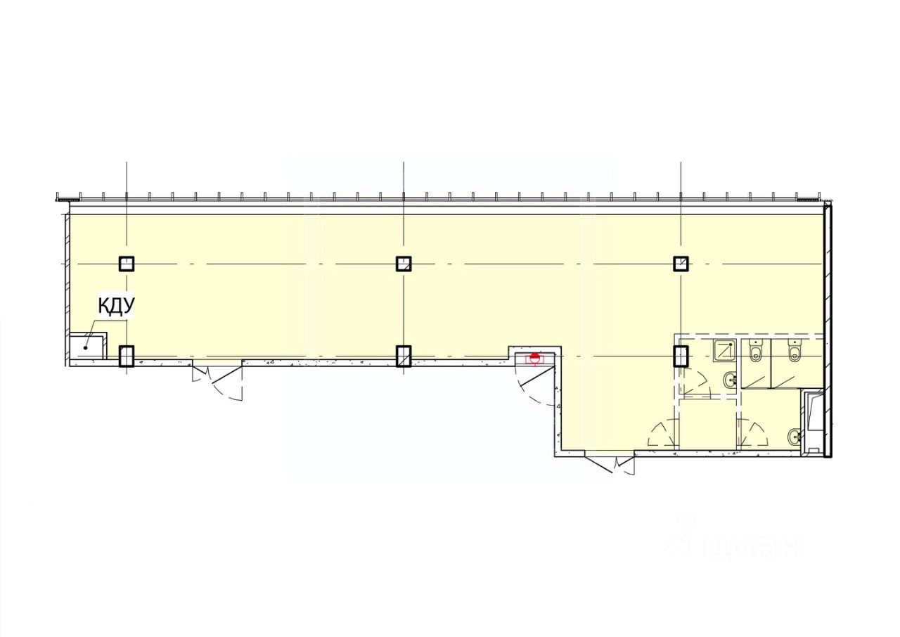
ID 3791. Эксклюзив Intermark. В аренду предлагается офис в новом современном бизнес-центре класса А Lucky, в 200 метрах от м. Улица 1905 года. До центра деловой жизни "Москва-Сити" и ТТК — 7 минут на машине, а до Садового кольца — 10 минут. В шаговой доступности находятся парковые зоны, кафе и рестораны, торговая галерея и фермерские лавки, школа кибернетики, образовательные студии, а также спортивный клуб с всесезонным подогреваемым бассейном и спортивными площадками на открытом воздухе. Современное офисное здание с панорамным солнцезащитным остеклением. Сплинкерная система пожаротушения, система кондиционирования чиллер-фанкойл, вентиляция York, VTS, NED, Systemair и отопление Techno. В офисе смешанная планировка, панорамное остекление по фасаду, высокие потолки 3,4 м, 2 входа, одна мокрая точка. Эл. мощность: 60 Вт на 1 кв.м. Сдается с отделкой. Также есть три машиноместа в подземном паркинге (оплачиваются отдельно). На первом этаже располагается лобби с премиальной отделкой и оборудованной турникетной системой контроля доступа 24/7. Предоставляется консьерж-сервис. Intermark Real Estate - участник ассоциации AREA. Мы работаем в выходные и праздничные дни, будем рады вашим звонкам в любое время.
lock

Войдите или зарегистрируйтесь
для просмотра информации

Просматривайте условия сделки и всю информацию об объекте
Сохраняйте фильтры в поиске и не вводите заново
Доступ к избранному с любого устройства
Неограниченное добавление в избранное
Позвоните автору
Вам ответят на все вопросы
Остались вопросы по объявлению?
Позвоните владельцу объявления и уточните необходимую информацию.
  • Инфраструктура
  • Похожие рядом
Помощь надёжных риелторов
Риелтор партнёр Циан поможет купить или продать любую недвижимость
1 200 000 ₽/мес.
15 950 $/мес.
13 524 /мес.
Цена за метр
119 009 ₽ в год
Налог
УСН
Комиссия
нет
Коммунальные платежи
не включены
Эксплуатационные расходы
не включены
Агентство недвижимости
Документы проверены
На Циан
6 лет
Объектов в работе
74