Мы используем куки-файлы. Соглашение об использовании
Площади198 – 2 958 м²
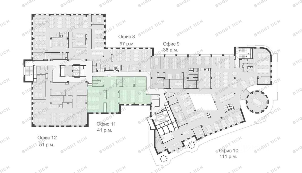
Этаж3 из 7
Парковка157 мест
ПомещениеСвободно
КлассA
Отчёт о привлекательности объектаУзнайте, насколько помещение и район подходят для вашего бизнеса
Что входит в отчёт
  • Охват населения
  • Пешеходный трафик
  • Автомобильный трафик
  • Средний бюджет семьи по району
  • Арендные ставки рядом
  • Точки притяжения
  • Конкуренты в радиусе 1 км
  • Рекомендации по выбору места для бизнеса
Доступно 11 площадей
198 м²
6 этаж
2 635 200 ₽/мес.
159 709 ₽/м² в год
235 м²
6 этаж
3 001 200 ₽/мес.
153 252 ₽/м² в год
304 м²
3 этаж
3 904 000 ₽/мес.
154 105 ₽/м² в год
309 м²
3 этаж
3 904 000 ₽/мес.
151 611 ₽/м² в год
322 м²
6 этаж
3 904 000 ₽/мес.
145 490 ₽/м² в год
Бизнес-центр Midland Plaza Аренда офиса класса А в районе Арбат; сервисные офисы; всё включено; прямая аренда без комиссии Бизнес-центр расположен в историческом центре Москвы в начале пешеходной улицы Старый Арбат. Изящное здание в неоклассическом стиле с удобными планировками и высокими потолками, частичное панорамное освещение, офисы с балконами. ПРЕИМУЩЕСТВА: • хорошая транспортная доступность: 6 минут пешком от станции Арбатская и 12 минут от станции Смоленская; • потолки от 4 метров; • выгодное расположение: рядом многочисленные музеи, театры, сквер Гоголевского бульвара, кафе, рестораны, кофейни, банкоматы и пр.; • вместительная подземная парковка; • круглосуточная охрана, видеонаблюдение, доступ 24/7, вход по пропускам. ФИН.УСЛОВИЯ: • арендная ставка указана с учётом НДС и ОРЕХ; • арендная ставка от 2 635 200 ₽/мес (146 400 ₽/м²/год); • прямой договор аренды с собственником без комиссии для клиента. Эти просторные и светлые офисы идеально подойдут компаниям, стремящимся подчеркнуть статус своей организации и повысить продуктивность сотрудников благодаря продуманному пространству и комфортной рабочей атмосфере. Готовы оперативно организовать просмотр в удобное время и предоставить PDF-презентацию, план, а также видеотур по запросу.
lock

Войдите или зарегистрируйтесь
для просмотра информации

Просматривайте условия сделки и всю информацию об объекте
Сохраняйте фильтры в поиске и не вводите заново
Доступ к избранному с любого устройства
Неограниченное добавление в избранное
Позвоните автору
Вам ответят на все вопросы
Остались вопросы по объявлению?
Позвоните владельцу объявления и уточните необходимую информацию.
  • Инфраструктура
  • Похожие рядом
Помощь надёжных риелторов
Риелтор партнёр Циан поможет купить или продать любую недвижимость
РиелторBright Rich Moscow
Суперагент
2 635 200 – 37 258 797 ₽/мес.

Прямая аренда (от года), предоплата за 1 месяц

от 32 868 до 491 028 $/мес.
от 27 918 до 417 078 €/мес.
Цена за метр
от 143 731 ₽ в год
Налог
НДС включен: 6 718 799 ₽
Комиссия
нет
Коммунальные платежи
включены
Эксплуатационные расходы
включены
Агентство недвижимости
На Циан
12 лет
Объектов в работе
более 1000