Мы используем куки-файлы. Соглашение об использовании
Помещение свободного назначения, от 8,3 до 40,2 м²

Сдается помещение свободного назначения, 8,3 – 40,2 м²

Площади8,3 – 40,2 м²
Этаж2 из 2
ПомещениеСвободно
Отчёт о привлекательности объектаУзнайте, насколько помещение и район подходят для вашего бизнеса
Что входит в отчёт
  • Охват населения
  • Пешеходный трафик
  • Автомобильный трафик
  • Средний бюджет семьи по району
  • Арендные ставки рядом
  • Точки притяжения
  • Конкуренты в радиусе 1 км
  • Рекомендации по выбору места для бизнеса
Доступно 3 площади
8,3 м²
2 этаж
20 750 ₽/мес.
30 000 ₽/м² в год
39,3 м²
2 этаж
39 300 ₽/мес.
12 000 ₽/м² в год
40,2 м²
2 этаж
40 200 ₽/мес.
12 000 ₽/м² в год
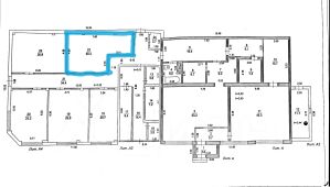
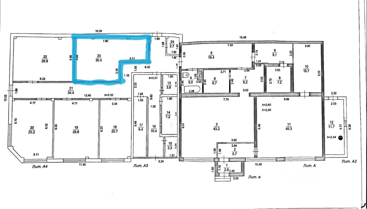
СДАЮТСЯ В АРЕНДУ ПОМЕЩЕНИЯ В ТОРГОВОМ ЦЕНТРЕ УДЕЛЬНАЯ Помещения в наличии: 8 кв.м + 39.3 кв.м + 40,7 кв.м Свободные помещения отмечены красным и жёлтым цветом на плане этажа смотри в галерее фотографий ВСЕ КОММУНАЛЬНЫЕ ПЛАТЕЖИ ВХОДЯТ В СТОИМОСТЬ АРЕНДЫ! МЕСТОРАСПОЛОЖЕНИЕ: Московская область, Раменский городской округ, дачный посёлок Удельная, Южный проспект, дом 28 КАК ДОБРАТЬСЯ: от станции МЦД-3 Удельная 2 минуты пешком ВОЗМОЖНОЕ ИСПОЛЬЗОВАНИЕ: помещение свободного назначения, торговля, магазин, салон, пункт выдачи, фитнес, пилатес, йога, салон красоты, косметический салон, парикмахерскую, магазин, салон, медицинский центр, аптека КРОМЕ: пищевые производства, кафе, бар ОСОБЕННОСТИ ДАННОГО ПРЕДЛОЖЕНИЯ: все коммунальные платежи входят в стоимость аренды, высота потолков 3 метра, возможна перепланировка помещения под ваш бизнес ХАРАКТЕРИСТИКИ ПОМЕЩЕНИЯ: 2-й этаж, отдельный вход на второй этаж по лестнице, помещения с отделкой и полностью готовы к эксплуатации ЦЕНТРАЛЬНЫЕ КОММУНИКАЦИИ: отопление, водоснабжение, канализация, электричество ИНФРАСТРУКТУРА и КОММЕРЧЕСКАЯ ПРИВЛЕКАТЕЛЬНОСТЬ: помещение расположено на 2-м этаже действующего Торгового Центра, первый этаж занимает сетевой Супермаркет ДИКСИ, в непосредственной близости находится железнодорожная платформа Удельная, население дачного посёлка Удельная на 2021 год составляет 17846 человек ЮРИДИЧЕСКИЕ АСПЕКТЫ: прямая аренда от собственника на упрощенной системе налогообложения (УСН) БЕЗ НДС.
lock

Войдите или зарегистрируйтесь
для просмотра информации

Просматривайте условия сделки и всю информацию об объекте
Сохраняйте фильтры в поиске и не вводите заново
Доступ к избранному с любого устройства
Неограниченное добавление в избранное
Позвоните автору
Вам ответят на все вопросы
Остались вопросы по объявлению?
Позвоните владельцу объявления и уточните необходимую информацию.
  • Инфраструктура
  • Похожие рядом
  • Площадь участка0 га
  • Общая площадь40,2 м²
  • Статус участкаВ собственности
Естественная вентиляция
Центральное отопление
Гидрантная система пожаротушения
Помощь надёжных риелторов
Риелтор партнёр Циан поможет купить или продать любую недвижимость
РиелторВиктор Косогоров
Суперагент
  • 3,9・35
  • 14 лет 3 месяца на Циане
  • 10 объявлений
  • 20 750 – 40 200 ₽/мес.

    Прямая аренда (от года), минимальный срок аренды 11 месяцев, доступны арендные каникулы, предоплата за 1 месяц

    от 116 до 563 $/мес.
    от 100 до 482 €/мес.
    Цена за метр
    от 12 000 ₽ в год
    Налог
    НДС включен: 7 249 ₽
    Комиссия
    нет
    Коммунальные платежи
    включены
    Эксплуатационные расходы
    включены
    РиелторВиктор Косогоров
    Суперагент