Мы используем куки-файлы. Соглашение об использовании
Площадь3 560 м²
Этаж1 из 1
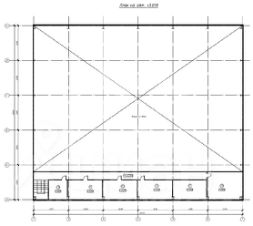
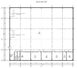
Сетка колонн9*3
Выс. потолков8.0 м.
Отчёт о привлекательности объектаУзнайте, насколько помещение и район подходят для вашего бизнеса
Что входит в отчёт
  • Охват населения
  • Пешеходный трафик
  • Автомобильный трафик
  • Средний бюджет семьи по району
  • Арендные ставки рядом
  • Точки притяжения
  • Конкуренты в радиусе 1 км
  • Рекомендации по выбору места для бизнеса
974736. Предлагаются три новых складских помещения класса В общей площадью 3 560 кв. м. во Фрязино. Преимущества: Первая линия Фряновского шоссе. Удобный подъезд для большегрузного автотранспорта, 29 км от МКАД. В шаговой доступности остановка общественного транспорта. Развитая инфраструктура. Открытая планировка + офисный блок. Полы - антипыль. Полностью оборудованы всем необходимым для эксплуатации. Водоснабжение - скважина, канализация - септик. Воздушное отопление от газовых котлов, газгольдеры. Приточная вентиляция. Земельный участок в собственности. Категория - земли промышленности. ВРИ - склады. Возможна установка кран-балки. Прямой представитель собственника, без комиссии для арендатора. Технические характеристики: Три склада: 1) Общая площадь - 1257,1 кв.м., в т.ч. офисный блок на мезонине - 100 кв.м. 2) Общая площадь - 1257,1 кв.м., в т.ч. офисный блок на мезонине - 100 кв.м. 3) Общая площадь - 1045,3 кв.м., в т.ч. офисный блок на мезонине - 100 кв.м. Высота потолка: 8 метров до ферм, 10 в коньке. Сетка колонн: 9*3 метра. Электрическая мощность: 150 кВт, с возможностью увеличения. Площадь ЗУ: 64 сотки.
lock

Войдите или зарегистрируйтесь
для просмотра информации

Просматривайте условия сделки и всю информацию об объекте
Сохраняйте фильтры в поиске и не вводите заново
Доступ к избранному с любого устройства
Неограниченное добавление в избранное
Позвоните автору
Вам ответят на все вопросы
Остались вопросы по объявлению?
Позвоните владельцу объявления и уточните необходимую информацию.
  • Инфраструктура
  • Похожие рядом
  • Год постройки2025
  • Тип зданияСклад
  • Общая площадь3 560 м²
Помощь надёжных риелторов
Риелтор партнёр Циан поможет купить или продать любую недвижимость
2 848 000 ₽/мес.

Прямая аренда (от года)

39 904 $/мес.
34 031 /мес.
Цена за метр
9 600 ₽ в год
Налог
УСН
Комиссия
нет
Коммунальные платежи
не включены
Эксплуатационные расходы
не включены
Агентство недвижимости
Документы проверены