Мы используем куки-файлы. Соглашение об использовании
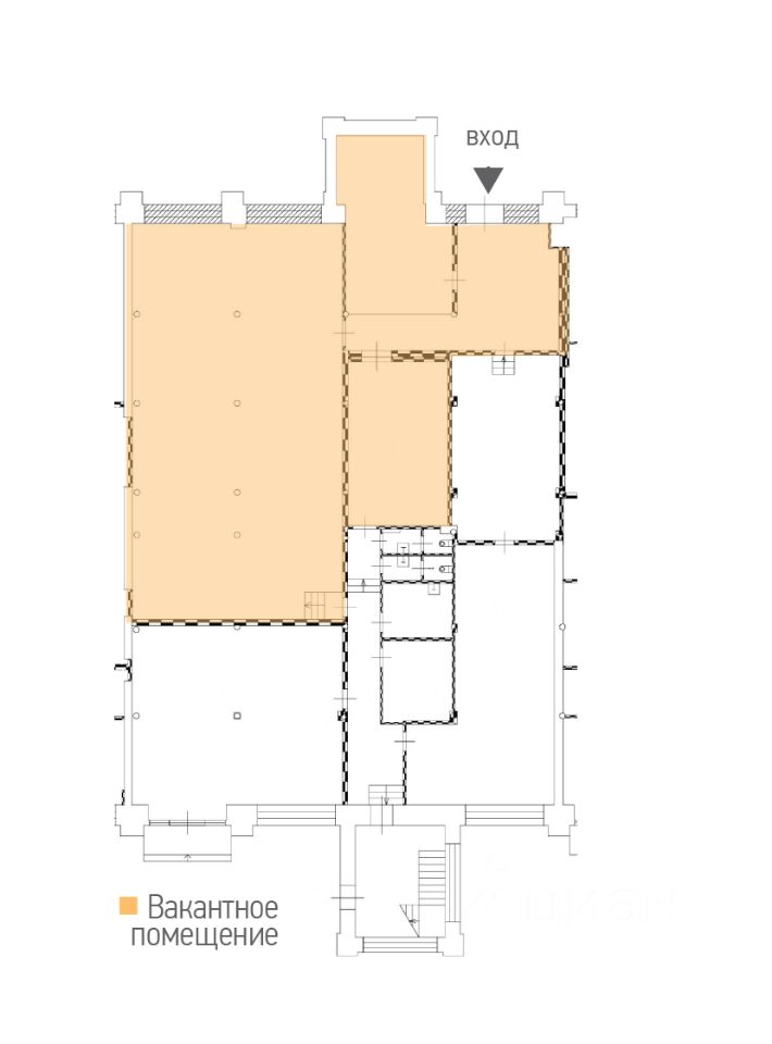
Площадь296 м²
Этаж1 из 3
КлассB+
Отчёт о привлекательности объектаУзнайте, насколько помещение и район подходят для вашего бизнеса
Что входит в отчёт
  • Охват населения
  • Пешеходный трафик
  • Автомобильный трафик
  • Средний бюджет семьи по району
  • Арендные ставки рядом
  • Точки притяжения
  • Конкуренты в радиусе 1 км
  • Рекомендации по выбору места для бизнеса
Прямая аренда помещения c отделкой - 296 кв.м (этаж 1) в кирпичном 3-х этажном здании в бизнес-квартале "Фактория". Высокие потолки. Отдельный вход. Предоставляется наземная и подземная парковка. Коммунальные платежи по факту потребления. ИНФРАСТРУКТУРА Инфраструктура на территории: фитнес-клуб со скалодромом, корпоративная столовая, кафе, ресторан, бар-ресторан, барбершоп, студия красоты, фитнес, бар, street food restaurants, бутик цветов и подарков. РАСПОЛОЖЕНИЕ 5 мин. пешком от ст.м. Савеловская/МЦД/БКЛ, 400 м до ТТК, 700 м до Дмитровского ш., 1,5 км до Ленинградского проспекта. Фактория - новое городское бизнес-пространство в сформированном деловом районе Москвы с максимально удобной транспортной доступностью общественным и личным транспортом. Близость бизнес-парка к одному из самых развитых офисной деловой зоны вокруг метро Белорусская и Савеловская и удобная транспортная доступность являются безусловными преимуществами бизнес-парка Фактория. БП Фактория стал победителем в номинации Редевелопмент офисной недвижимости в самой престижной Премии в сфере коммерческой недвижимости CRE Moscow Awards 2019.
lock

Войдите или зарегистрируйтесь
для просмотра информации

Просматривайте условия сделки и всю информацию об объекте
Сохраняйте фильтры в поиске и не вводите заново
Доступ к избранному с любого устройства
Неограниченное добавление в избранное
Позвоните автору
Вам ответят на все вопросы
Остались вопросы по объявлению?
Позвоните владельцу объявления и уточните необходимую информацию.
  • Инфраструктура
  • Похожие рядом
Помощь надёжных риелторов
Риелтор партнёр Циан поможет купить или продать любую недвижимость
Управляющая компанияPrime Property Management
Суперагент
  • 7 лет 11 месяцев на Циане
  • 5 объявлений
  • 692 147 ₽/мес.

    Прямая аренда (от года), минимальный срок аренды 11 месяцев, предоплата за 2 месяца

    9 164 $/мес.
    7 840 /мес.
    Цена за метр
    28 060 ₽ в год
    Налог
    НДС включен: 124 814 ₽
    Комиссия
    8%
    Коммунальные платежи
    не включены
    Эксплуатационные расходы
    включены
    Управляющая компанияPrime Property Management
    Суперагент