Мы используем куки-файлы. Соглашение об использовании
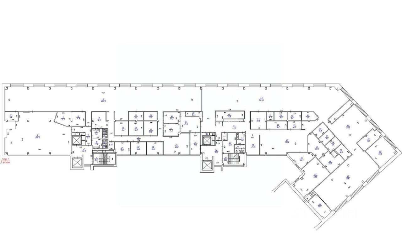
Помещение свободного назначения, 865 м²

Сдается помещение свободного назначения (B+)

Площадь865 м²
Этаж2 из 3
КлассB+
Отчёт о привлекательности объектаУзнайте, насколько помещение и район подходят для вашего бизнеса
Что входит в отчёт
  • Охват населения
  • Пешеходный трафик
  • Автомобильный трафик
  • Средний бюджет семьи по району
  • Арендные ставки рядом
  • Точки притяжения
  • Конкуренты в радиусе 1 км
  • Рекомендации по выбору места для бизнеса
Лот: 50884pd. Центральный район Москвы. Удобный доступ на Садовое кольцо и Третье транспортное кольцо. Офисный комплекс класса В+, состоит из 6 строений разной этажности (максимально 6), общей площадью 32 000 кв.м. Комплекс расположен на земельном участке 3,5 Га. Эффективная планировка этажей. Современные инженерные системы. Развитая инфраструктура: банкомат, химчистка, отель, театр, рестораны и кафе.
lock

Войдите или зарегистрируйтесь
для просмотра информации

Просматривайте условия сделки и всю информацию об объекте
Сохраняйте фильтры в поиске и не вводите заново
Доступ к избранному с любого устройства
Неограниченное добавление в избранное
Позвоните автору
Вам ответят на все вопросы
Остались вопросы по объявлению?
Позвоните владельцу объявления и уточните необходимую информацию.
  • Инфраструктура
  • Похожие рядом
Помощь надёжных риелторов
Риелтор партнёр Циан поможет купить или продать любую недвижимость
4 045 317 ₽/мес.

Прямая аренда (от года)

53 777 $/мес.
45 938 /мес.
Цена за метр
56 120 ₽ в год
Налог
НДС включен: 729 484 ₽
Комиссия
нет
Коммунальные платежи
не включены
Эксплуатационные расходы
включены
Агентство недвижимости
Документы проверены
На Циан
10 лет
Объектов в работе
более 1000