Мы используем куки-файлы. Соглашение об использовании

Сдается офис, 13 – 91 м²

Площади13 – 91 м²
Этаж1 из 17
Отчёт о привлекательности объектаУзнайте, насколько помещение и район подходят для вашего бизнеса
Что входит в отчёт
  • Охват населения
  • Пешеходный трафик
  • Автомобильный трафик
  • Средний бюджет семьи по району
  • Арендные ставки рядом
  • Точки притяжения
  • Конкуренты в радиусе 1 км
  • Рекомендации по выбору места для бизнеса
Доступно 4 площади
13 м²
1 этаж
28 000 ₽/мес.
25 846 ₽/м² в год
15 м²
1 этаж
36 000 ₽/мес.
28 800 ₽/м² в год
18 м²
1 этаж
56 000 ₽/мес.
37 333 ₽/м² в год
91 м²
1 этаж
210 000 ₽/мес.
27 692 ₽/м² в год
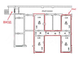
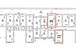
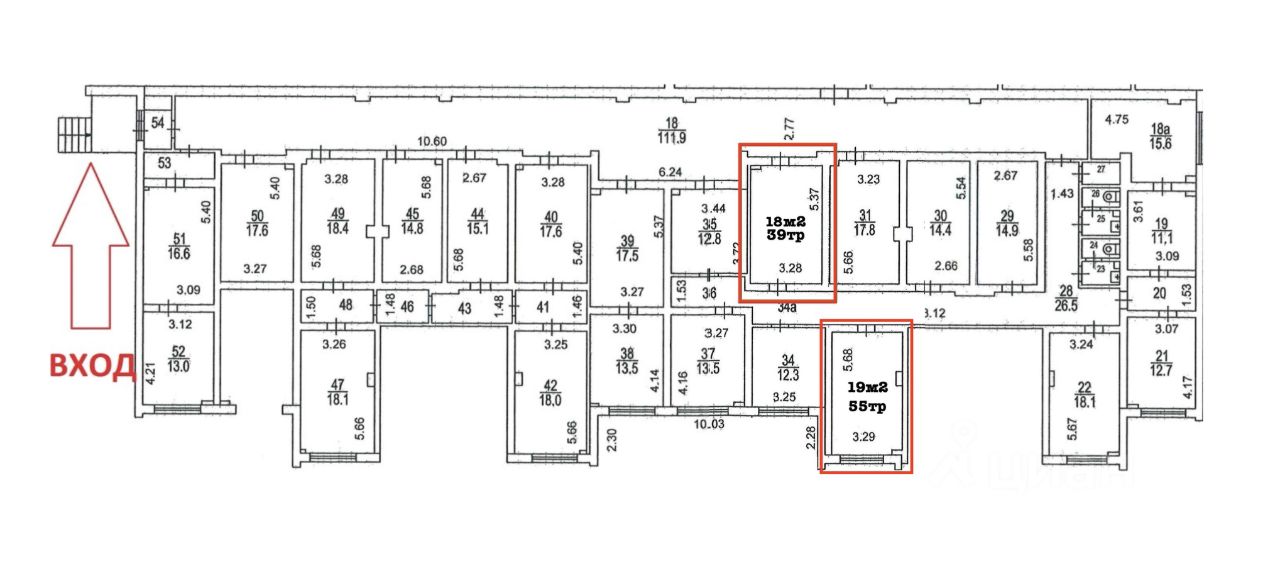
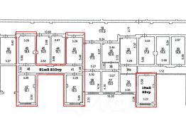
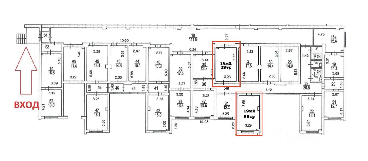
В Аренду предлагаются офисные помещения - 13м2, 15м2, 18м2, 91м2. Помещения в Отличном состоянии, с Ремонтом, Потолки - 2,8 метра, 1й этаж, Готовы к въезду. Есть возможность предоставления мебели. 13м2 - кабинет с окном, 28000р, 15м2 - кабинет без окна, есть приточная вентиляция, 36000р, 18м2 - кабинет с окном, 56000р, 91м2 - 4 кабинета (2 с окнами и 2 без окон), 210000р, Помещения расположены на 1м этаже жилого дома, в офисную часть отдельный вход с улицы. Помещения оборудованы: вентиляция, пожарная сигнализация, интернет, телефония, видеонаблюдение, круглосуточный доступ по магнитному ключу. В стоимость Включены: Коммунальные платежи, Техническое обслуживание, Доступ 24/7. Парковка на прилегающей территории - бесплатная. Отдельно оплачиваются: электричество, интернет (несколько провайдеров на выбор), уборка. ИФНС 27. УСН. От м.Новые Черемушки 8-10 мин пешком, от м.Калужская и м.Воронцовская по 15 мин пешком. Удобная транспортная и пешая доступность. Просмотры в удобное для вас время по договоренности.
lock

Войдите или зарегистрируйтесь
для просмотра информации

Просматривайте условия сделки и всю информацию об объекте
Сохраняйте фильтры в поиске и не вводите заново
Доступ к избранному с любого устройства
Неограниченное добавление в избранное
Позвоните автору
Вам ответят на все вопросы
Остались вопросы по объявлению?
Позвоните владельцу объявления и уточните необходимую информацию.
  • Инфраструктура
  • Похожие рядом
  • Тип зданияЖилой дом
  • Площадь участка0 га
  • Общая площадь91 м²
  • Статус участкаВ собственности
Естественная вентиляция
Центральное кондиционирование
Центральное отопление
Помощь надёжных риелторов
Риелтор партнёр Циан поможет купить или продать любую недвижимость
28 000 – 210 000 ₽/мес.

Прямая аренда (от года), минимальный срок аренды 11 месяцев, доступны арендные каникулы, обеспечительный платёж 28000 ₽, предоплата за 1 месяц

от 429 до 3 003 $/мес.
от 364 до 2 548 €/мес.
Цена за метр
от 25 846 ₽ в год
Налог
УСН
Комиссия
нет
Коммунальные платежи
включены
Эксплуатационные расходы
включены
Агентство недвижимости
Суперагент
На Циан
13 лет
Объектов в работе
44