Мы используем куки-файлы. Соглашение об использовании
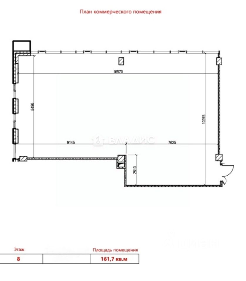
Площадь163 м²
Этаж8 из 12
КлассA
Отчёт о привлекательности объектаУзнайте, насколько помещение и район подходят для вашего бизнеса
Что входит в отчёт
  • Охват населения
  • Пешеходный трафик
  • Автомобильный трафик
  • Средний бюджет семьи по району
  • Арендные ставки рядом
  • Точки притяжения
  • Конкуренты в радиусе 1 км
  • Рекомендации по выбору места для бизнеса
Код объекта: 1788055. Собственник, прямой договор. Панорамный вид. Рассматриваем все предложения, готовы обсудить отделку. Сдается офисное помещение 163 м² на 8 этаже в бизнес-центре класса А в кластере "Ostankino Business Park" Преимущества локации: - 1 минута пешком до м. Бутырская - 3 минуты до МЦД3 Останкино - Менее 10 минут на машине до ТТК и СВХ Инфраструктура БЦ: - Современные зоны лобби - Охрана и пропускной режим - Наземный паркинг - Первые этажи под ритейл и кафе - Доступ в здание 24/7 Технические характеристики: - Отделка (возможна под ваш проект) - Высота потолков: 3,7 м - Нагрузка на пол: 400 кг/м² - Электропитание: 0,1 кВт/м² -Оптиковолоконный интернет - Системы: приточно-вытяжная вентиляция, центральное кондиционирование, АПС, ОПС и пожаротушение. - Окна с проветриванием, центральная диспетчеризация Угловое расположение офиса, панорамный вид из окон.
lock

Войдите или зарегистрируйтесь
для просмотра информации

Просматривайте условия сделки и всю информацию об объекте
Сохраняйте фильтры в поиске и не вводите заново
Доступ к избранному с любого устройства
Неограниченное добавление в избранное
Позвоните автору
Вам ответят на все вопросы
Остались вопросы по объявлению?
Позвоните владельцу объявления и уточните необходимую информацию.
  • Инфраструктура
  • Похожие рядом
Помощь надёжных риелторов
Риелтор партнёр Циан поможет купить или продать любую недвижимость
590 000 ₽/мес.

Обеспечительный платёж 590000 ₽, предоплата за 1 месяц

7 812 $/мес.
6 683 /мес.
Цена за метр
43 436 ₽ в год
Налог
НДС включен: 106 393 ₽
Комиссия
нет
Коммунальные платежи
не включены
Эксплуатационные расходы
не включены
Агентство недвижимости
Документы проверены
Риелтор