Мы используем куки-файлы. Соглашение об использовании
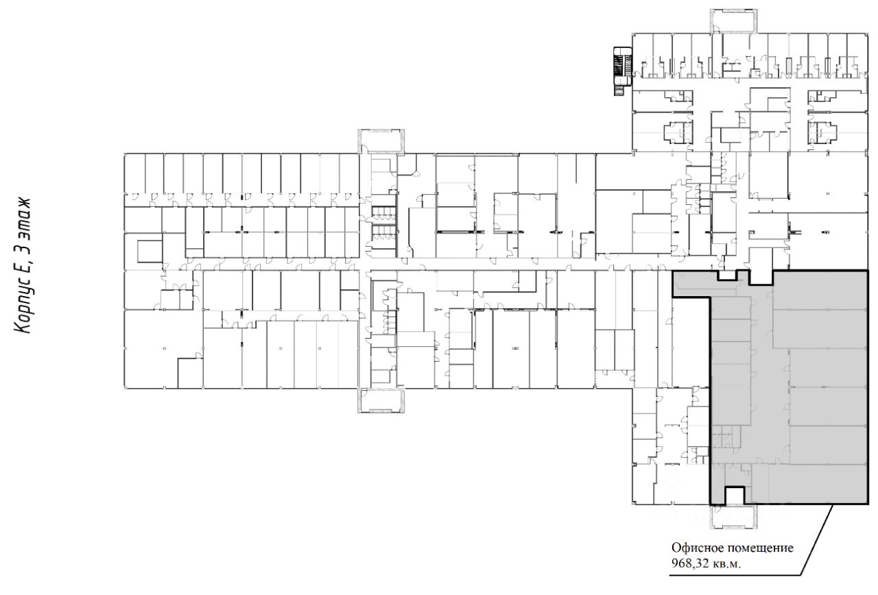
Площадь968,32 м²
Этаж3 из 9
Парковка10000 мест
КлассB
Отчёт о привлекательности объектаУзнайте, насколько помещение и район подходят для вашего бизнеса
Что входит в отчёт
  • Охват населения
  • Пешеходный трафик
  • Автомобильный трафик
  • Средний бюджет семьи по району
  • Арендные ставки рядом
  • Точки притяжения
  • Конкуренты в радиусе 1 км
  • Рекомендации по выбору места для бизнеса
3 АКЦИЯ МАЯ ДЛЯ ЭТОГО ПОМЕЩЕНИЯ: 1. Получите 1 месяц в подарок при заключении договора аренды офиса в мае. 2. Получите 3 месяца охраняемого круглосуточного паркинга бесплатно при заключении договора аренды офиса в мае. 3. Арендуйте офис и склад, чтобы получить выгоду до 457 тыс. рублей при заключении договора в мае. Сдается угловое офисное помещение, комбинированная планировка, open space пространство + кабинеты, в блоке имеется кухня, светлое и объемное пространство для вашей компании, приточно-вытяжная система вентиляция, система кондиционирования, отличные видовые характеристики. Пол - ковролин, стены - обои под покраску, потолок - открытые Ваш офис в 2 минутах от метро Румянцево (ЮЗАО). Нулевая комиссия, фиксированная ставка — напрямую от управляющей компании бизнес-парка Румянцево. ЧТО ПРЕДЛАГАЕМ Готовое офисное помещение в аренду с отделкой — офис под ключ, заезжаете и работаете Долгосрочная прямая аренда с фиксацией ставки на длительный срок — стабильность в любой ситуации на рынке Предоставляем юридический адрес для регистрации Охрана 24/7 — ваш бизнес под защитой круглосуточно Стоимость включает НДС и эксплуатацию. Дополнительно оплачиваются: электричество по счётчику, уборка и интернет НАШИ ПРЕИМУЩЕСТВА — Прямая аренда от собственника в ЮЗАО — ставка ниже рынка, никаких посредников и комиссий. Разницу оставляете себе — Бесплатная парковка на 7 000 машиномест — ни один деловой партнёр не скажет не смог припарковаться — БП Румянцево — это крупнейший торгово-деловой центр Европы площадью 480 000 м². Здесь есть всё: кафе, столовые, банки, аптеки, салоны красоты, фитнес-клуб, типографии, юристы, нотариусы, отель. Деловые встречи, обед, тренировка — всё не выходя из комплекса — Доступ к помещению 24/7 с возможностью заезда машины на этаж для погрузки/разгрузки — 500 метров до МКАД — свобода передвижения по всей Москве и Подмосковью РАСПОЛОЖЕНИЕ Бизнес-парк Румянцево, Юго-западный административный округ Москвы. От метро Румянцево пешком — 2 минуты (50 метров). Удобный заезд и выезд на МКАД. 5 минут езды на автомобиле от аэропорта Внуково. Идеально для компаний, которым важны доступность и статус одновременно. Офисы в таком месте долго не стоят свободными. Позвоните сейчас — подберем вариант под ваш бюджет и задачи без посредников и с фиксированной ставкой.
lock

Войдите или зарегистрируйтесь
для просмотра информации

Просматривайте условия сделки и всю информацию об объекте
Сохраняйте фильтры в поиске и не вводите заново
Доступ к избранному с любого устройства
Неограниченное добавление в избранное
Позвоните автору
Вам ответят на все вопросы
Остались вопросы по объявлению?
Позвоните владельцу объявления и уточните необходимую информацию.
  • Инфраструктура
  • Похожие рядом
Помощь надёжных риелторов
Риелтор партнёр Циан поможет купить или продать любую недвижимость
Управляющая компанияБизнес-парк Румянцево
Суперагент
  • 11 лет 1 месяц на Циане
  • 56 объявлений
  • 1 089 360 ₽/мес.

    Прямая аренда (от года), минимальный срок аренды 11 месяцев, предоплата за 1 месяц

    14 662 $/мес.
    12 302 /мес.
    Цена за метр
    13 500 ₽ в год
    Налог
    НДС включен: 196 441 ₽
    Комиссия
    нет
    Коммунальные платежи
    не включены
    Эксплуатационные расходы
    включены
    Управляющая компанияБизнес-парк Румянцево
    Суперагент