Мы используем куки-файлы. Соглашение об использовании
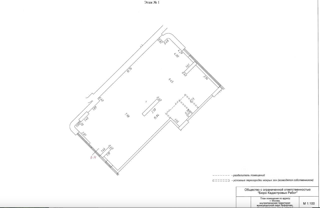
Помещение свободного назначения, 132 м²

Сдается помещение свободного назначения, 132 м²

Площадь132 м²
Этаж1 из 14
Отчёт о привлекательности объектаУзнайте, насколько помещение и район подходят для вашего бизнеса
Что входит в отчёт
  • Охват населения
  • Пешеходный трафик
  • Автомобильный трафик
  • Средний бюджет семьи по району
  • Арендные ставки рядом
  • Точки притяжения
  • Конкуренты в радиусе 1 км
  • Рекомендации по выбору места для бизнеса
Сдается от Собственника помещение в ЖК бизнес класса СИМВОЛ. В доме все квартиры с отделкой! Помещение в бетоне от застройщика - свободная планировка. В технической документации назначение кафе - так же подходит для любого вида деятельности. Предоставляются арендные каникулы - детали обсуждаются лично. Коммунальные платежи оплачиваются отдельно.
lock

Войдите или зарегистрируйтесь
для просмотра информации

Просматривайте условия сделки и всю информацию об объекте
Сохраняйте фильтры в поиске и не вводите заново
Доступ к избранному с любого устройства
Неограниченное добавление в избранное
Позвоните автору
Вам ответят на все вопросы
Остались вопросы по объявлению?
Позвоните владельцу объявления и уточните необходимую информацию.
  • Инфраструктура
  • Похожие рядом
  • Тип зданияЖилой комплекс
  • Общая площадь132 м²
Естественная вентиляция
Центральное отопление
Гидрантная система пожаротушения
Помощь надёжных риелторов
Риелтор партнёр Циан поможет купить или продать любую недвижимость
Автор объявления
ID 473797
  • 12 лет на Циане
  • 400 000 ₽/мес.

    Прямая аренда (от года), доступны арендные каникулы, обеспечительный платёж 400000 ₽, предоплата за 1 месяц

    5 384 $/мес.
    4 517 /мес.
    Цена за метр
    36 364 ₽ в год
    Налог
    УСН
    Комиссия
    нет
    Коммунальные платежи
    не включены
    Эксплуатационные расходы
    не включены
    Автор объявления
    ID 473797