Мы используем куки-файлы. Соглашение об использовании
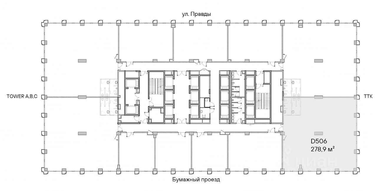
Площадь278,9 м²
Этаж5 из 19
КлассA
Отчёт о привлекательности объектаУзнайте, насколько помещение и район подходят для вашего бизнеса
Что входит в отчёт
  • Охват населения
  • Пешеходный трафик
  • Автомобильный трафик
  • Средний бюджет семьи по району
  • Арендные ставки рядом
  • Точки притяжения
  • Конкуренты в радиусе 1 км
  • Рекомендации по выбору места для бизнеса
Аренда офиса в бизнес-центре Tower D с прямым выходом в благоустроенный парк площадью 5 000 м², в составе премиального офисного квартала STONE TOWERS в Белорусском деловом районе. Бизнес-квартал рассчитан на 11 000 сотрудников, развитая инфраструктура 24/7 — кафе и рестораны, гостевой паркинг с зарядками для электромобилей, инженерное обслуживание от профессиональной управляющей компании. Характеристики офиса: - Класс БЦ: А - Этаж: 5/19 (Башня D) - Площадь: 278,9 м² - Планировка: Open space - Отделка: Shell&Core - Высота потолков: 3,65 м - Мокрая точка: есть - Шаг колонн: 8,4 х 8,4 - Глубина помещения: до 10 м - Окна в пол с естественным проветриванием - Круглосуточный доступ Коммерческие условия: - Ремонтные работы от собственника обсуждаются индивидуально по запросу Расположение: Офисный квартал отличают престижное расположение в Белорусском деловом районе и высокая транспортная доступность: - пешая доступность (4 мин) до ТПУ Савеловская; - пешая доступность (12 мин) до ТПУ Белорусская; - удобный доступ до Москва-Сити (15 мин); - близость аэропорта Шереметьево (45 мин) Преимущества офисного квартала: - Парк 5000 кв.м в составе офисного квартала - Современные инженерные системы - Двухуровневый подземный паркинг - Наземный гостевой паркинг - Столовая для резидентов - Торговая и офисная инфраструктура в режиме сухие ноги STONE — девелопер коммерческой и жилой недвижимости классов бизнес и премиум в Москве с 18-летним опытом. С 2022 года занимает лидирующую позицию на офисном рынке (рейтинг РБК). Сегодня в портфеле девелопера представлено 2,5 млн кв. м построенных, строящихся и проектируемых объектов, из которых более 850 тыс. кв. м находятся в стадии строительства. Компания имеет самый масштабный проектный портфель офисной недвижимости класса А на московском рынке (данные NF Group) и возглавляет топ-6 устойчивых девелоперов, согласно исследованию FResearch Forbes. В настоящий момент девелопером представлено 15 бизнес-центров класса А, а также 3 жилых комплекса бизнес+ класса.
lock

Войдите или зарегистрируйтесь
для просмотра информации

Просматривайте условия сделки и всю информацию об объекте
Сохраняйте фильтры в поиске и не вводите заново
Доступ к избранному с любого устройства
Неограниченное добавление в избранное
Позвоните автору
Вам ответят на все вопросы
Остались вопросы по объявлению?
Позвоните владельцу объявления и уточните необходимую информацию.
  • Инфраструктура
  • Похожие рядом
Помощь надёжных риелторов
Риелтор партнёр Циан поможет купить или продать любую недвижимость
Агентство недвижимости
Суперагент
1 045 875 ₽/мес.

Прямая аренда (от года), минимальный срок аренды 11 месяцев, предоплата за 2 месяца

14 741 $/мес.
12 757 /мес.
Цена за метр
45 000 ₽ в год
Налог
УСН
Комиссия
нет
Коммунальные платежи
не включены
Эксплуатационные расходы
не включены
Агентство недвижимости
Суперагент
На Циан
6 лет
Объектов в работе
226