Мы используем куки-файлы. Соглашение об использовании
Помещение свободного назначения, 120 м²

Сдается помещение свободного назначения, 120 м²

Площадь120 м²
Этаж2 из 2
ПомещениеСвободно
Отчёт о привлекательности объектаУзнайте, насколько помещение и район подходят для вашего бизнеса
Что входит в отчёт
  • Охват населения
  • Пешеходный трафик
  • Автомобильный трафик
  • Средний бюджет семьи по району
  • Арендные ставки рядом
  • Точки притяжения
  • Конкуренты в радиусе 1 км
  • Рекомендации по выбору места для бизнеса
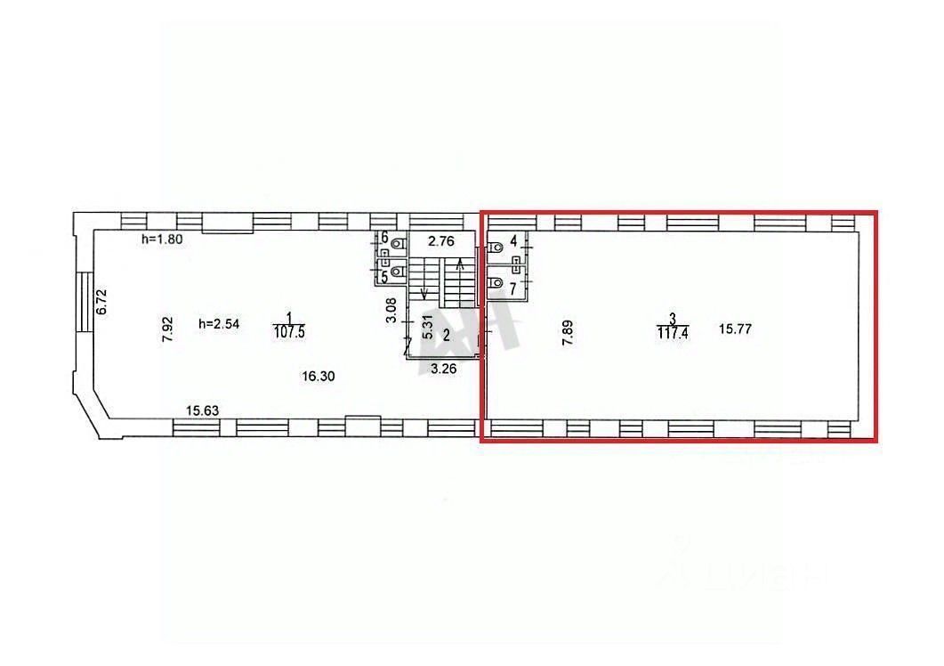
Лот 951723 Предложение от Собственника! Предлагаем в аренду помещения свободного назначения 120 кв.м., с отд. входом с улицы, возле единственного выхода из м. Полянка. Высокоинтенсивный трафик. Рекламные возможности. Престижный деловой район Москвы. Полностью открытая планировка, установлены гипсокартонные перегородки. Окна с двух сторон. Есть возможность устройства мокрых точек. Высота потолка от 1,8 до 2,5м. Отопление, ХВС, ГВС. Предоставляются арендные каникулы. Прямая аренда. Под: офис, компьютерный клуб, салон красоты, парикмахерская, интернет магазин, шоу-рум, услуги В цену включено: НДС 5%. В цену не включено: затраты на электричество, коммунальные расходы, уборка. Обеспечительный платеж 1 месяц. Чтобы получить ПОДРОБНУЮ ПРЕЗЕНТАЦИЮ С ПЛАНИРОВКОЙ И ФОТОГРАФИЯМИ, звоните или отправьте свой email и номер телефона в сообщении на портале. Высылаем в течение 15 минут по запросу! Конт. лицо: Александр Александрович, доб. 245, ЛОТ 951723
lock

Войдите или зарегистрируйтесь
для просмотра информации

Просматривайте условия сделки и всю информацию об объекте
Сохраняйте фильтры в поиске и не вводите заново
Доступ к избранному с любого устройства
Неограниченное добавление в избранное
Позвоните автору
Вам ответят на все вопросы
Остались вопросы по объявлению?
Позвоните владельцу объявления и уточните необходимую информацию.
  • Инфраструктура
  • Похожие рядом
Помощь надёжных риелторов
Риелтор партнёр Циан поможет купить или продать любую недвижимость
393 750 ₽/мес.

Прямая аренда (от года), обеспечительный платёж 393750 ₽

5 175 $/мес.
4 404 /мес.
Цена за метр
39 375 ₽ в год
Налог
НДС включен: 71 000 ₽
Комиссия
нет
Коммунальные платежи
не включены
Эксплуатационные расходы
включены
Агентство недвижимости
На Циан
17 лет
Объектов в работе
более 5000
Риелтор
Суперагент