Мы используем куки-файлы. Соглашение об использовании
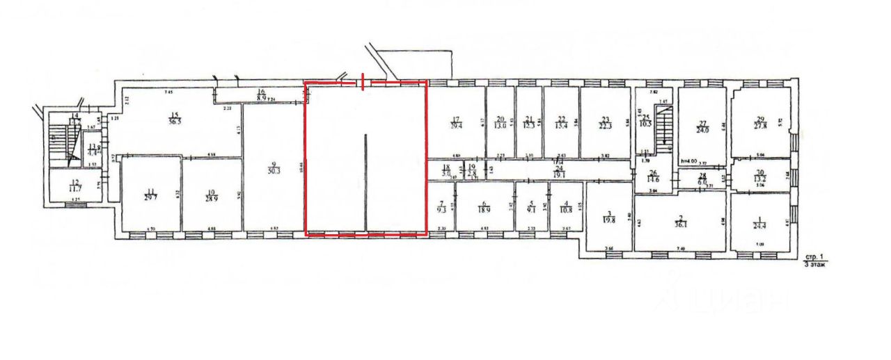
Площадь703,9 м²
Этаж3 из 3
Парковка145 мест
ПомещениеСвободно
КлассB
Отчёт о привлекательности объектаУзнайте, насколько помещение и район подходят для вашего бизнеса
Что входит в отчёт
  • Охват населения
  • Пешеходный трафик
  • Автомобильный трафик
  • Средний бюджет семьи по району
  • Арендные ставки рядом
  • Точки притяжения
  • Конкуренты в радиусе 1 км
  • Рекомендации по выбору места для бизнеса
ОТ СОБСТВЕННИКА. Прямая аренда от собственника офиса на Огородном проезде д.5 стр.2: в свао, офисный центр, имеет отличную транспортную доступность, расположен в 50 метрах от станции метро Бутырская (5 минуты пешком), в пяти минутах езды от ТТК, проспекта Мира, Дмитровское шоссе. Евроремонт, приточно-вытяжная вентиляция, кондиционирование, огороженная территория, охрана, парковка, интернет, телефон, кафе, полная инфраструктура.
lock

Войдите или зарегистрируйтесь
для просмотра информации

Просматривайте условия сделки и всю информацию об объекте
Сохраняйте фильтры в поиске и не вводите заново
Доступ к избранному с любого устройства
Неограниченное добавление в избранное
Позвоните автору
Вам ответят на все вопросы
Остались вопросы по объявлению?
Позвоните владельцу объявления и уточните необходимую информацию.
  • Инфраструктура
  • Похожие рядом

Строение 2

  • Год постройки1968
  • Категория зданияДействующее
  • Площадь участка0,12 га
  • Общая площадь7 653,2 м²
Естественная вентиляция
Центральное кондиционирование
Центральное отопление
Сигнализация
Помощь надёжных риелторов
Риелтор партнёр Циан поможет купить или продать любую недвижимость
997 192 ₽/мес.

Прямая аренда (от года), предоплата за 2 месяца

13 254 $/мес.
11 238 /мес.
Цена за метр
17 000 ₽ в год
Налог
УСН
Комиссия
нет
Коммунальные платежи
не включены
Эксплуатационные расходы
включены
Агентство недвижимости
Документы проверены