Мы используем куки-файлы. Соглашение об использовании
Помещение свободного назначения, 302 м²

Сдается помещение свободного назначения, 302 м²

Площадь302 м²
Этаж1 из 8
Отчёт о привлекательности объектаУзнайте, насколько помещение и район подходят для вашего бизнеса
Что входит в отчёт
  • Охват населения
  • Пешеходный трафик
  • Автомобильный трафик
  • Средний бюджет семьи по району
  • Арендные ставки рядом
  • Точки притяжения
  • Конкуренты в радиусе 1 км
  • Рекомендации по выбору места для бизнеса
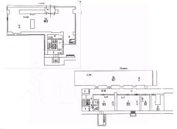
ПЛАТИМ АГЕНТАМ. Входим в ассоциацию профессионалов коммерческой недвижимости КОКОН. Здание находится в Ломоносовском районе Юго-Западного административного округа Москвы. Рядом проходят ключевые транспортные магистрали - проспект Вернадского, Ленинский проспект и улица Профсоюзная. В шаговой доступности расположены станции метро. Налоговая: 36. Лифты: Есть. Вентиляция: Приточно-вытяжная. Кондиционирование: Сплит-системы. Безопасность: Круглосуточный доступ, Система пожаротушений, Видеонаблюдение. Парковка: Наземная. Описание помещения: Помещение включает первый этаж площадью 100 м2 и подвал площадью 201,7 м2. Есть дополнительный вход со двора и зона погрузки-разгрузки с дебаркадером. Большие витринные окна и высокие потолки создают хорошее естественное освещение и комфортную атмосферу. Планировка: смешанная. Типовой ремонт. Высокие потолки. Высота потолка: 4.75м. Тип налогообложения: С НДС. Лот 69587-87
lock

Войдите или зарегистрируйтесь
для просмотра информации

Просматривайте условия сделки и всю информацию об объекте
Сохраняйте фильтры в поиске и не вводите заново
Доступ к избранному с любого устройства
Неограниченное добавление в избранное
Позвоните автору
Вам ответят на все вопросы
Остались вопросы по объявлению?
Позвоните владельцу объявления и уточните необходимую информацию.
  • Инфраструктура
  • Похожие рядом

Ленинский 87

  • Общая площадь29 183 м²
Приточная вентиляция
Местное кондиционирование
Помощь надёжных риелторов
Риелтор партнёр Циан поможет купить или продать любую недвижимость
600 000 ₽/мес.

Прямая аренда (от года)

8 013 $/мес.
6 835 /мес.
Цена за метр
23 842 ₽ в год
Налог
НДС включен: 108 196 ₽
Комиссия
нет
Коммунальные платежи
не включены
Эксплуатационные расходы
включены
Агентство недвижимости
Риелтор
Суперагент
5,0・2