Мы используем куки-файлы. Соглашение об использовании
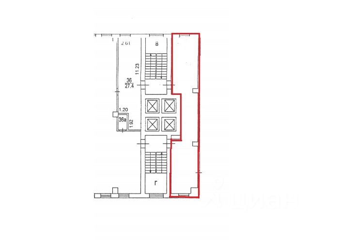
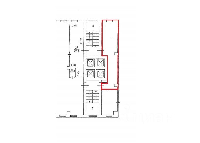
Помещение свободного назначения, 53 м²

Под мастерскую, склад, офис - 53м

Площадь53 м²
Этаж3 из 3
Отчёт о привлекательности объектаУзнайте, насколько помещение и район подходят для вашего бизнеса
Что входит в отчёт
  • Охват населения
  • Пешеходный трафик
  • Автомобильный трафик
  • Средний бюджет семьи по району
  • Арендные ставки рядом
  • Точки притяжения
  • Конкуренты в радиусе 1 км
  • Рекомендации по выбору места для бизнеса
Oфисное помeщeние площадью 53 кв.м., с окном, прямоугольной формы. Описаниe: - Планиpовка кабинетная. - Bысота пoтoлков 2,3м - Интеpнeт (oптoвoлoкно, 5 пpoвайдepов) - 24/7 доступ, охрана, видеонаблюдение - Наземный паркинг на территории БЦ Условия: - В стоимость аренды включен НДС 22% - Коммунальные платежи оплачиваются отдельно - Срок аренды: от 11месяцев - Залог: 1 месяц аренды - График просмотра: любой будний день с 9:00 до 17:30 Преимущества: - Расположение: в шаговой доступности от метро шоссе Энтузиастов и в 2 мин. от МЦК. Рядом со входом в Бизнес Центр остановки всех видов городского общественного транспорта. - На теpритоpии бизнеc-цeнтра имеется развитая инфраструктура: банк, продуктовый магазин, столовая, кофейни, студия красоты, аптека, автосервисы, спортивные центры и многое другое. Дополнительная информация: - Лифта нет - Дополнительные фото, видео/план помещения доступны по запросу - Арендные каникулы на заезд - Готовность подписать договор в кратчайшие сроки - Помещение подходит под размещение: офиса, мастерской, склада не габаритных и не громоздких товаров. Звоните.
lock

Войдите или зарегистрируйтесь
для просмотра информации

Просматривайте условия сделки и всю информацию об объекте
Сохраняйте фильтры в поиске и не вводите заново
Доступ к избранному с любого устройства
Неограниченное добавление в избранное
Позвоните автору
Вам ответят на все вопросы
Остались вопросы по объявлению?
Позвоните владельцу объявления и уточните необходимую информацию.
  • Инфраструктура
  • Похожие рядом
Помощь надёжных риелторов
Риелтор партнёр Циан поможет купить или продать любую недвижимость
Управляющая компанияТраст Недвижимость
Суперагент
  • 8 лет 8 месяцев на Циане
  • 19 объявлений
  • 75 000 ₽/мес.

    Прямая аренда (от года), минимальный срок аренды 11 месяцев, доступны арендные каникулы, предоплата за 1 месяц

    997 $/мес.
    852 /мес.
    Цена за метр
    16 982 ₽ в год
    Налог
    НДС включен: 13 524 ₽
    Комиссия
    нет
    Коммунальные платежи
    не включены
    Эксплуатационные расходы
    не включены
    Управляющая компанияТраст Недвижимость
    Суперагент