Мы используем куки-файлы. Соглашение об использовании

Сдается торговая площадь, 180 м²

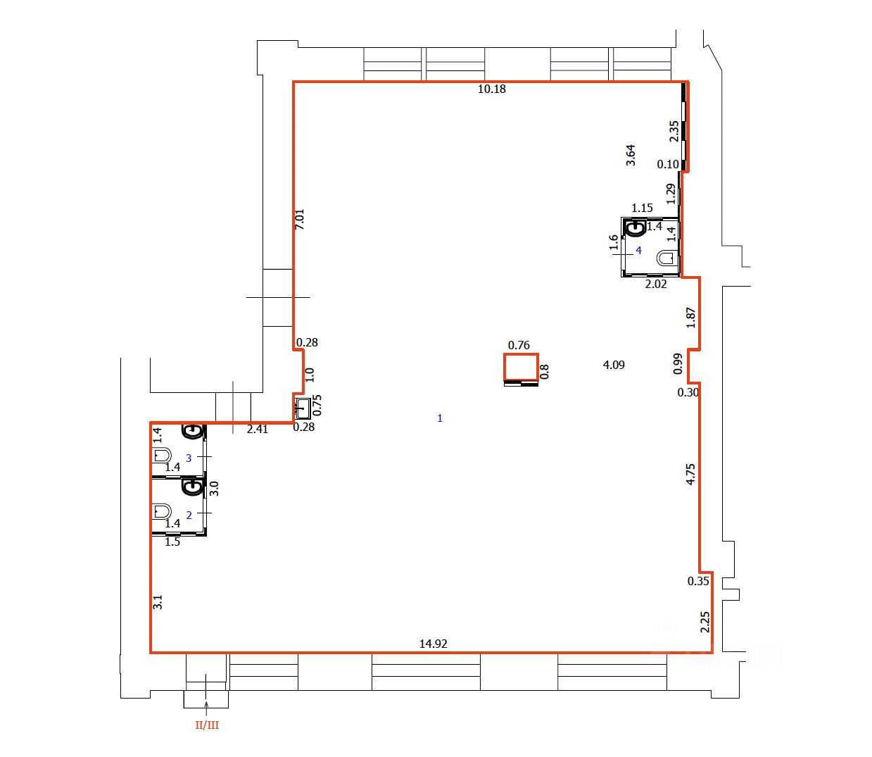
Торговая/Офисная/Услуги 180 м кв

Площадь180 м²
Этаж1 из 10
Отчёт о привлекательности объектаУзнайте, насколько помещение и район подходят для вашего бизнеса
Что входит в отчёт
  • Охват населения
  • Пешеходный трафик
  • Автомобильный трафик
  • Средний бюджет семьи по району
  • Арендные ставки рядом
  • Точки притяжения
  • Конкуренты в радиусе 1 км
  • Рекомендации по выбору места для бизнеса
Первый этаж Отдельный вход. Со стороны Бобров переулок. Панорамные окна с прекрасным видом. Помещение свободного назначения. Кирпичные старые стены в стиле лофт. Произведена пескоструйная обработка стен. Помещение готово к чистовому ремонту. Электричество 60 кВт/380 В отдельный вент. канал Арендные каникулы. Гибкая система.
lock

Войдите или зарегистрируйтесь
для просмотра информации

Просматривайте условия сделки и всю информацию об объекте
Сохраняйте фильтры в поиске и не вводите заново
Доступ к избранному с любого устройства
Неограниченное добавление в избранное
Позвоните автору
Вам ответят на все вопросы
Остались вопросы по объявлению?
Позвоните владельцу объявления и уточните необходимую информацию.
  • Инфраструктура
  • Похожие рядом
  • Общая площадь180 м²
Естественная вентиляция
Центральное отопление
Помощь надёжных риелторов
Риелтор партнёр Циан поможет купить или продать любую недвижимость
СобственникID 125696955
    850 000 ₽/мес.

    Прямая аренда (от года), доступны арендные каникулы, предоплата за 1 месяц

    11 923 $/мес.
    10 267 /мес.
    Цена за метр
    56 667 ₽ в год
    Налог
    УСН
    Комиссия
    10%
    Коммунальные платежи
    не включены
    Эксплуатационные расходы
    не включены
    СобственникID 125696955