Мы используем куки-файлы. Соглашение об использовании

Сдается торговая площадь, 80 м²

Площадь80 м²
Этаж1 из 17
ПомещениеСвободно
Отчёт о привлекательности объектаУзнайте, насколько помещение и район подходят для вашего бизнеса
Что входит в отчёт
  • Охват населения
  • Пешеходный трафик
  • Автомобильный трафик
  • Средний бюджет семьи по району
  • Арендные ставки рядом
  • Точки притяжения
  • Конкуренты в радиусе 1 км
  • Рекомендации по выбору места для бизнеса
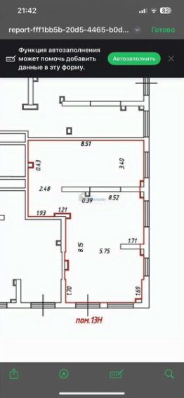
Арт. 126591959 Сдаеся торговая площадь, 80 м² в новом современном ЖК. Москва, Иловайская ул., 2 Тип здания: жилой дом Общая площадь: 80 м² Этаж: 1 Метро: Перерва 6 мин пешком. Сдаеся торговая площадь, 80 м² в новом доме в современном ЖК, дом сдан и заселен. Характеристики: Вход: с улицы Отдельный вход: есть Высота потолков: 4.5 м Отделка: чистовая Мощность электросети: 16 кВт Парковка: на улице До конца месяца в помещении будет выполнена чистовая отделка, и уложена кафельная плитка. Высокий трафик: Дома сданы и заселены, рядом в декабре сдадутся еще 4 дома, в радиусе 500м более 3500 домохозяйств. Тип аренды: прямая Стоимость аренды 300.000 руб/мес. Арендные каникулы: есть Минимальный срок аренды: 11 мес. Оперативный показ.
lock

Войдите или зарегистрируйтесь
для просмотра информации

Просматривайте условия сделки и всю информацию об объекте
Сохраняйте фильтры в поиске и не вводите заново
Доступ к избранному с любого устройства
Неограниченное добавление в избранное
Позвоните автору
Вам ответят на все вопросы
Остались вопросы по объявлению?
Позвоните владельцу объявления и уточните необходимую информацию.
  • Инфраструктура
  • Похожие рядом
  • Общая площадь80 м²
Центральное отопление
Помощь надёжных риелторов
Риелтор партнёр Циан поможет купить или продать любую недвижимость
300 000 ₽/мес.

Прямая аренда (от года), доступны арендные каникулы, обеспечительный платёж 300000 ₽, предоплата за 1 месяц

3 987 $/мес.
3 395 /мес.
Цена за метр
45 000 ₽ в год
Налог
УСН
Комиссия
нет
Коммунальные платежи
не включены
Эксплуатационные расходы
не включены
Агентство недвижимости
Риелтор
Суперагент