Мы используем куки-файлы. Соглашение об использовании
Площадь187 м²
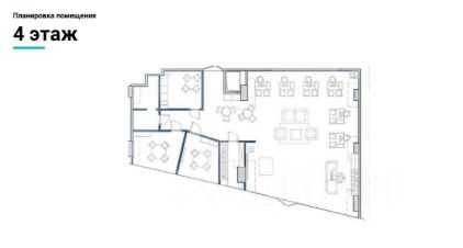
Этаж4 из 12
ПомещениеСвободно
КлассA
Отчёт о привлекательности объектаУзнайте, насколько помещение и район подходят для вашего бизнеса
Что входит в отчёт
  • Охват населения
  • Пешеходный трафик
  • Автомобильный трафик
  • Средний бюджет семьи по району
  • Арендные ставки рядом
  • Точки притяжения
  • Конкуренты в радиусе 1 км
  • Рекомендации по выбору места для бизнеса
Предлагаем в аренду офис на 16 - 41 сотрудников в бизнес-центре "Смоленский пассаж 2". Разработаем планировку под вашу команду бесплатно с неограниченными правками. Площадь: 187 м². Состояние: готов к въезду. Арендная плата: 967 694 руб./мес. Ставка: 62 098 руб./м²/год (включая эксплуатацию). Налогообложение: включая НДС. Коммунальные расходы: включены в арендную ставку. Тип аренды: прямая аренда. Этаж: 4 из 12. Помещение с функциональной смешанной планировкой. Вентиляция: приточно-вытяжная. Кондиционирование: сплит-системы. Охрана: круглосуточная охрана здания. Пожарная сигнализация: датчики пожаротушения. Бизнес-центр "Смоленский Пассаж 2" класса А расположен рядом с метро Смоленская. Удобный выезд на: Садовое кольцо. Инфраструктура здания: Подземная парковка на 70 мест, рестораны и кафе, торговая галерея. В пешей доступности: Старый Арбат, театры и музеи. Юридические адреса обслуживаются в налоговой 4. Звоните или пишите в чат - организуем просмотр в день обращения и направим презентацию по объекту. Бесплатно разработаем планировку под вашу команду, рассчитаем оптимальную рассадку и зонирование. *Количество рабочих мест рассчитано автоматически: от 4,5 до 12 м² на человека. ID объекта: 40071
lock

Войдите или зарегистрируйтесь
для просмотра информации

Просматривайте условия сделки и всю информацию об объекте
Сохраняйте фильтры в поиске и не вводите заново
Доступ к избранному с любого устройства
Неограниченное добавление в избранное
Позвоните автору
Вам ответят на все вопросы
Остались вопросы по объявлению?
Позвоните владельцу объявления и уточните необходимую информацию.
  • Инфраструктура
  • Похожие рядом
Помощь надёжных риелторов
Риелтор партнёр Циан поможет купить или продать любую недвижимость
967 694 ₽/мес.

Прямая аренда (от года)

12 724 $/мес.
10 797 /мес.
Цена за метр
62 099 ₽ в год
Налог
НДС включен: 174 502 ₽
Комиссия
нет
Коммунальные платежи
включены
Эксплуатационные расходы
не включены
Агентство недвижимости
Документы проверены
На Циан
15 лет
Объектов в работе
более 5000