Мы используем куки-файлы. Соглашение об использовании

Офисное здание_ЦАО_набережная

Площадь959,5 м²
Этаж4 из 4
КлассB
Отчёт о привлекательности объектаУзнайте, насколько помещение и район подходят для вашего бизнеса
Что входит в отчёт
  • Охват населения
  • Пешеходный трафик
  • Автомобильный трафик
  • Средний бюджет семьи по району
  • Арендные ставки рядом
  • Точки притяжения
  • Конкуренты в радиусе 1 км
  • Рекомендации по выбору места для бизнеса
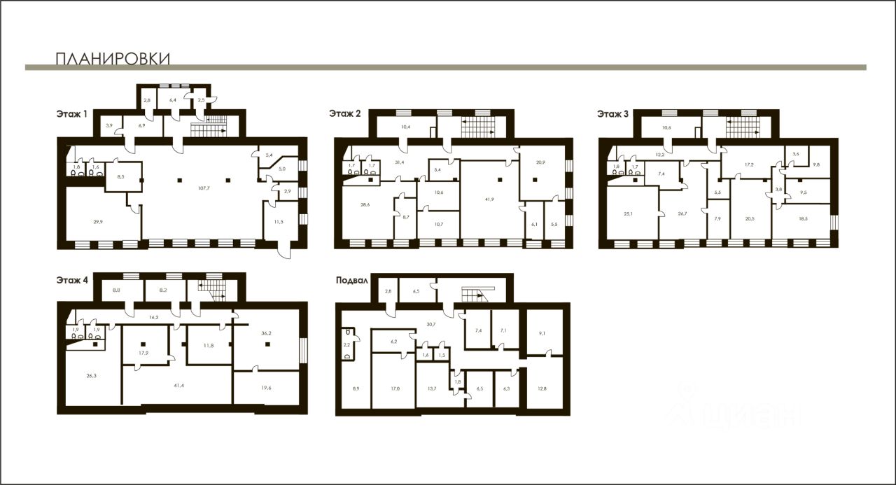
От собственника. Сдается в аренду офисный 4-х этажный особняк в центре Москвы на набережной. Минимальная площадь в аренду - 1 этаж. Площадь каждого этажа указаны на планировках. Здание исторической постройки с земельным участком площадью 0,3 Га. Количество парковочных мест - 3 м/м. Здание расположено на набережной в центре исторического района Москвы в 5-7 минутах ходьбы от станции метро "Новокузнецкая" с максимально развитой инфраструктурой: рестораны, бары, кафе, главные культурно-досуговые центры, салоны красоты, спа-центры. Знаменитый район Замоскворечье, раскинувшийся на правом берегу реки Москвы, к югу от Кремля является безусловным преимуществом для особняка и даёт возможность удобно добраться ко всем основным достопримечательностям центра Москвы, а также основным транспортным магистралям. Спокойный и уютный двор с озеленением, которое окружает здание, позволит уединиться и отдохнуть от городской суеты. Комфортные условия труда в помещениях поддерживаются за счет наличия централизованной приточно-вытяжной вентиляции и сплит-системам кондиционирования. Помещения с высококачественной отделкой с коридорно-кабинетной планировкой, позволяющие разместить сотрудников в соответствии с принадлежностью к тому или иному отделу. Парковка автотранспорта возможна на прилегающих к нему территориях.
lock

Войдите или зарегистрируйтесь
для просмотра информации

Просматривайте условия сделки и всю информацию об объекте
Сохраняйте фильтры в поиске и не вводите заново
Доступ к избранному с любого устройства
Неограниченное добавление в избранное
Позвоните автору
Вам ответят на все вопросы
Остались вопросы по объявлению?
Позвоните владельцу объявления и уточните необходимую информацию.
  • Инфраструктура
  • Похожие рядом
Помощь надёжных риелторов
Риелтор партнёр Циан поможет купить или продать любую недвижимость
Отдел арендыID 136853186
  • Документы проверены
  • 6 месяцев на Циане
  • 2 объявления
  • 3 901 967 ₽/мес.

    Прямая аренда (от года), минимальный срок аренды 12 месяцев, доступны арендные каникулы, предоплата за 2 месяца

    53 350 $/мес.
    45 219 /мес.
    Цена за метр
    48 800 ₽ в год
    Налог
    НДС включен: 703 634 ₽
    Комиссия
    12%
    Коммунальные платежи
    не включены
    Эксплуатационные расходы
    не включены
    Отдел арендыID 136853186
    Документы проверены