Мы используем куки-файлы. Соглашение об использовании
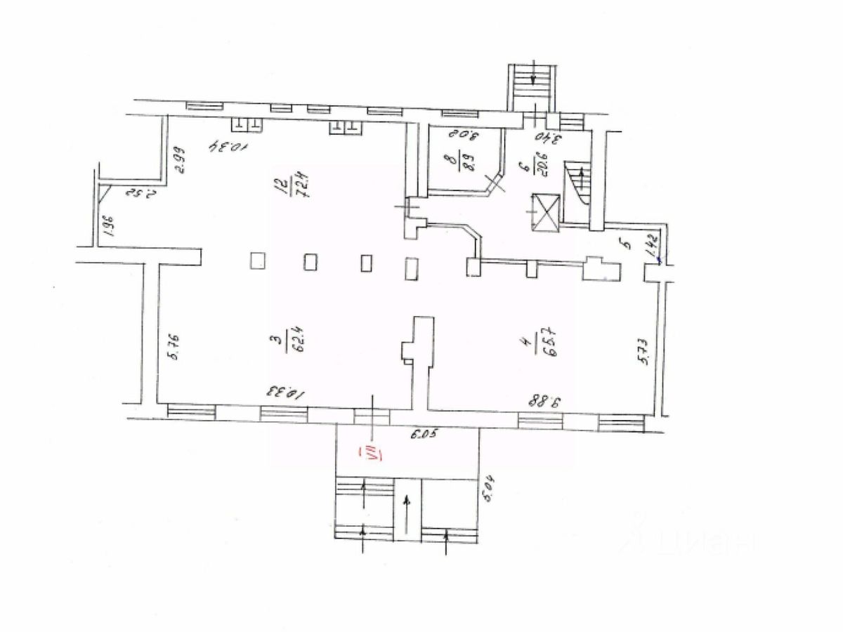
Помещение свободного назначения, 346,1 м²

Сдается помещение свободного назначения, 346,1 м²

Площадь346,1 м²
Этаж1 из 8
Отчёт о привлекательности объектаУзнайте, насколько помещение и район подходят для вашего бизнеса
Что входит в отчёт
  • Охват населения
  • Пешеходный трафик
  • Автомобильный трафик
  • Средний бюджет семьи по району
  • Арендные ставки рядом
  • Точки притяжения
  • Конкуренты в радиусе 1 км
  • Рекомендации по выбору места для бизнеса
1098894. Предлагаем помещение свободного назначения, площадью 346,1 кв. м., расположенное на первом этаже и в подвале 8-этажного жилого дома. Преимущества объекта: -первая линия домов, оживленное место; -15 минут пешком от станции метро ВДНХ; -центр густонаселенного жилого массива; -сложившееся торговое окружение; -интенсивный пешеходный и автомобильный трафик; -объект отлично просматривается, находится в легком доступе для потенциальных клиентов; -просторное и функциональное - это помещение подходит для различных видов бизнеса: от магазина до офиса; -все коммуникации центральные; -витринное остекление; -место для вывески; -зона разгрузки/погрузки; -наземная парковка; -рядом остановки общественного транспорта. Технические параметры объекта: -2 входные группы; -площадь по этажам: 1 этаж - 231.42 кв. м., подвал - 114,68 кв. м.; -электрическая мощность: 40 кВт; -высота потолков: 1 этаж - 3,3 м, подвал - 2.41 м. Идеально под супермаркет, зоотовары, товары для дома. Свяжитесь с нами для получения дополнительной информации!
lock

Войдите или зарегистрируйтесь
для просмотра информации

Просматривайте условия сделки и всю информацию об объекте
Сохраняйте фильтры в поиске и не вводите заново
Доступ к избранному с любого устройства
Неограниченное добавление в избранное
Позвоните автору
Вам ответят на все вопросы
Остались вопросы по объявлению?
Позвоните владельцу объявления и уточните необходимую информацию.
  • Инфраструктура
  • Похожие рядом
  • Тип зданияЖилой дом
  • Общая площадь346,1 м²
Помощь надёжных риелторов
Риелтор партнёр Циан поможет купить или продать любую недвижимость
780 000 ₽/мес.

Прямая аренда (от года)

10 369 $/мес.
8 858 /мес.
Цена за метр
27 045 ₽ в год
Налог
УСН
Комиссия
нет
Коммунальные платежи
не включены
Эксплуатационные расходы
не включены
Агентство недвижимости
Документы проверены