Мы используем куки-файлы. Соглашение об использовании

Сдается офис (B+)

    Площади169 – 854,8 м²
    Этаж-1 из 17
    КлассB+
    Отчёт о привлекательности объектаУзнайте, насколько помещение и район подходят для вашего бизнеса
    Что входит в отчёт
    • Охват населения
    • Пешеходный трафик
    • Автомобильный трафик
    • Средний бюджет семьи по району
    • Арендные ставки рядом
    • Точки притяжения
    • Конкуренты в радиусе 1 км
    • Рекомендации по выбору места для бизнеса
    Доступно 3 площади
    169 м²
    1 этаж
    859 100 ₽/мес.
    61 001 ₽/м² в год
    685,8 м²
    -1 этаж
    2 963 228 ₽/мес.
    51 850 ₽/м² в год
    854,8 м²
    -1 - 1 этаж
    3 822 328 ₽/мес.
    53 659 ₽/м² в год
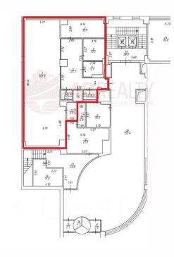
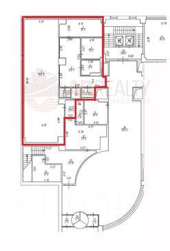
    Без комиссии! Аренда от собственника! В ЦАО бизнес центре "СадКо" сдаются в аренду офисные блоки. БЦ класс А. Локация: 10 мин. пешком от ст. м. Курская, м. Чкаловская, м. Таганская. 1 этаж. Офис 169 кв.м. Современный ремонт в стиле Лофт. Планировка смешанная: зона open-space, кабинет руководителя, 2 переговорных, кухня, свои санузлы (м и ж). Цокольный этаж - это уровень 1го этажа. Офис 685,8 кв.м со своими с/у. Дополнительная информация о БЦ: - Система приточно-вытяжной вентиляции - Центральное кондиционирование - Система пожарной безопасности - Провайдер: Вест Колл - Круглосуточная охрана и видеонаблюдение - Пропускная система, контроль доступа - Услуги клининга и технического обслуживания - Столовая и кафе - Наземный паркинг Прямой договор с собственником! Предоставляется юридический адрес. ИФНС 9. Арендная ставка указана с НДС. Звоните и записывайтесь на просмотр!
    lock

    Войдите или зарегистрируйтесь
    для просмотра информации

    Просматривайте условия сделки и всю информацию об объекте
    Сохраняйте фильтры в поиске и не вводите заново
    Доступ к избранному с любого устройства
    Неограниченное добавление в избранное
    Позвоните автору
    Вам ответят на все вопросы
    Остались вопросы по объявлению?
    Позвоните владельцу объявления и уточните необходимую информацию.
    • Инфраструктура
    • Похожие рядом
    Помощь надёжных риелторов
    Риелтор партнёр Циан поможет купить или продать любую недвижимость
    РиелторАБ Риэлти
    Документы проверены
    859 100 – 3 822 328 ₽/мес.

    Прямая аренда (от года), минимальный срок аренды 11 месяцев, доступны арендные каникулы, предоплата за 1 месяц

    от 10 140 до 51 288 $/мес.
    от 8 619 до 43 595 €/мес.
    Цена за метр
    от 51 850 ₽ в год
    Налог
    НДС включен: 689 272 ₽
    Комиссия
    нет
    Коммунальные платежи
    не включены
    Эксплуатационные расходы
    не включены
    Агентство недвижимости
    Документы проверены
    На Циан
    11 лет
    Объектов в работе
    более 1000
    Риелтор