Мы используем куки-файлы. Соглашение об использовании
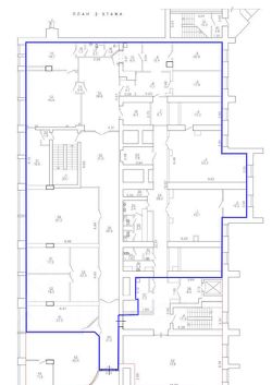
Помещение свободного назначения, 618,8 м²

Сдается помещение свободного назначения, 618,8 м²

Офисное помещение от собственника

Площадь618,8 м²
Этаж3 из 4
Отчёт о привлекательности объектаУзнайте, насколько помещение и район подходят для вашего бизнеса
Что входит в отчёт
  • Охват населения
  • Пешеходный трафик
  • Автомобильный трафик
  • Средний бюджет семьи по району
  • Арендные ставки рядом
  • Точки притяжения
  • Конкуренты в радиусе 1 км
  • Рекомендации по выбору места для бизнеса
Сдаётся коммерческое помещение площадью 618,8 м2 на третьем этаже в БЦ Долгоруковская 40, в шаговой доступности от метро Новослободская. Идеально подходящее под офис, медицинский центр или бьюти-индустрию. Пространство отличается высокими потолками, что создаёт ощущение лёгкости, а кабинетная планировка позволяет удобно зонировать рабочие процессы. Помещение оснащено мокрыми точками, что особенно важно для медицинской и косметологической деятельности. Локация — одно из ключевых преимуществ всего одна минута от метро, высокий пешеходный трафик. Мы готовы выполнить ремонт в соответствии с вашим дизайн-проектом в кратчайшие сроки (до 2-ух месяцев) создав идеальное рабочее пространство. -Предоставление юридического адреса. -Кабинетная планировка. -Наличие мокрых точек в каждом кабинете. -Высота потолков - 3,4 м. -Круглосуточная охрана и видеонаблюдение по всему периметру здания. -Наземная городская парковка. -Скоростной интернет. -Предоставление комплексных услуг по эксплуатации и клининга. -Заключение договора на прямую от собственника, без комиссии. -Оперативный показ помещения в любое удобное для Вас время.
lock

Войдите или зарегистрируйтесь
для просмотра информации

Просматривайте условия сделки и всю информацию об объекте
Сохраняйте фильтры в поиске и не вводите заново
Доступ к избранному с любого устройства
Неограниченное добавление в избранное
Позвоните автору
Вам ответят на все вопросы
Остались вопросы по объявлению?
Позвоните владельцу объявления и уточните необходимую информацию.
  • Инфраструктура
  • Похожие рядом
  • Общая площадь618,8 м²
Приточная вентиляция
Центральное кондиционирование
Центральное отопление
Сигнализация
Помощь надёжных риелторов
Риелтор партнёр Циан поможет купить или продать любую недвижимость
Управляющая компанияID 137764448
  • Документы проверены
  • 4 месяца на Циане
  • 4 объявления
  • 2 846 480 ₽/мес.

    Прямая аренда (от года), минимальный срок аренды 11 месяцев, доступны арендные каникулы, обеспечительный платёж 2846480 ₽, предоплата за 1 месяц

    38 146 $/мес.
    32 387 /мес.
    Цена за метр
    55 200 ₽ в год
    Налог
    НДС включен: 512 986 ₽
    Комиссия
    нет
    Коммунальные платежи
    не включены
    Эксплуатационные расходы
    не включены
    Управляющая компанияID 137764448
    Документы проверены