Мы используем куки-файлы. Соглашение об использовании
Площадь241 м²
Этаж4 из 11
Парковка120 мест
КлассB+
Отчёт о привлекательности объектаУзнайте, насколько помещение и район подходят для вашего бизнеса
Что входит в отчёт
  • Охват населения
  • Пешеходный трафик
  • Автомобильный трафик
  • Средний бюджет семьи по району
  • Арендные ставки рядом
  • Точки притяжения
  • Конкуренты в радиусе 1 км
  • Рекомендации по выбору места для бизнеса
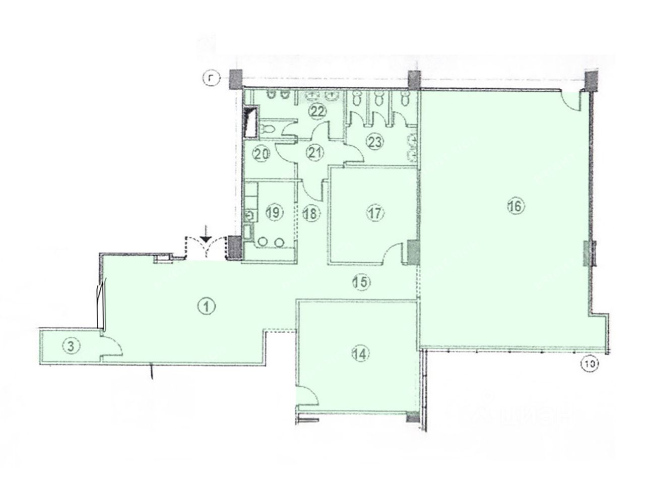
Офисное помещение 241 кв. м в бизнес-центре "Трио". Округ: Северный (САО). Район: Аэропорт. Ближайшие станции метро: Аэропорт, Динамо, Петровский парк. Характеристики: - Класс: B+; - Арендопригодная площадь: 30200; - Код налоговой: 14; - Размер типового этажа: 1300; - Высота потолков: 3.6 м; - Наличие лифта: Есть; - Кол-во мест наземного паркинга: 80; - Кол-во мест подземного паркинга: 120; - Интернет-провайдеры: Гарс Телеком, Мастер-Телеком; - Шаг колонн: 8.1x8.1 м. Арендная ставка: 26 888.4 руб./кв. м в год. Финансовые условия: - В стоимость включено: OPEX; - Оплачивается отдельно: Интернет, Коммунальные услуги, Телефония, Уборка, Электроэнергия; - Налог: УСН (НДС 5%). Без комиссии и скрытых платежей для арендатора. Готовы оперативно организовать просмотр в удобное время, предоставить PDF-презентацию и план. Точное местоположение объекта можно найти по данным координатам: 55.800863,37.554717 ID = c_1786558
lock

Войдите или зарегистрируйтесь
для просмотра информации

Просматривайте условия сделки и всю информацию об объекте
Сохраняйте фильтры в поиске и не вводите заново
Доступ к избранному с любого устройства
Неограниченное добавление в избранное
Позвоните автору
Вам ответят на все вопросы
Остались вопросы по объявлению?
Позвоните владельцу объявления и уточните необходимую информацию.
  • Инфраструктура
  • Похожие рядом
Помощь надёжных риелторов
Риелтор партнёр Циан поможет купить или продать любую недвижимость
РиелторBright Rich Moscow
Суперагент
540 081 ₽/мес.

Прямая аренда (от года), минимальный срок аренды 11 месяцев, доступны арендные каникулы, предоплата за 1 месяц

7 180 $/мес.
6 133 /мес.
Цена за метр
26 892 ₽ в год
Налог
УСН
Комиссия
нет
Коммунальные платежи
не включены
Эксплуатационные расходы
включены
Агентство недвижимости
На Циан
12 лет
Объектов в работе
более 1000
Риелтор
Суперагент