Мы используем куки-файлы. Соглашение об использовании
Помещение свободного назначения, 344 м²

Сдается помещение свободного назначения, 344 м²

Площадь344 м²
Этаж2 из 10
Отчёт о привлекательности объектаУзнайте, насколько помещение и район подходят для вашего бизнеса
Что входит в отчёт
  • Охват населения
  • Пешеходный трафик
  • Автомобильный трафик
  • Средний бюджет семьи по району
  • Арендные ставки рядом
  • Точки притяжения
  • Конкуренты в радиусе 1 км
  • Рекомендации по выбору места для бизнеса
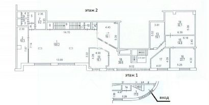
Номер объекта: 537160. Предлагается в Аренду отличное помещение на интенсивном трафике. Отдельный вход с первой линии. Второй этаж. Рядом с метро Марксистская и. Таганская, прекрасная визуализация,и отличные рекламные возможности. Подойдет под Салон красоты или другую деятельность, - Общая площадь: 344,3 кв. м. (1 этаж - 19 м², 2 этаж - 325,3 кв. м.); - Отдельный вход с первого этажа с улицы Таганская; - Высокие потолки - 3 м, большие витринные окна по фасаду; - Удобное расположение — прямая видимость с дороги; - Развитая инфраструктура - рядом рестораны, магазины, офисные и жилые здания, парковка; - Состояние — ремонт за выездом арендатора; - Электричество: 30 кВт; Прямой договор. Без комиссии. Двойной депозит.
lock

Войдите или зарегистрируйтесь
для просмотра информации

Просматривайте условия сделки и всю информацию об объекте
Сохраняйте фильтры в поиске и не вводите заново
Доступ к избранному с любого устройства
Неограниченное добавление в избранное
Позвоните автору
Вам ответят на все вопросы
Остались вопросы по объявлению?
Позвоните владельцу объявления и уточните необходимую информацию.
  • Инфраструктура
  • Похожие рядом
  • Тип зданияСвободное
  • Общая площадь344 м²
Центральное кондиционирование
Центральное отопление
Сигнализация
Помощь надёжных риелторов
Риелтор партнёр Циан поможет купить или продать любую недвижимость
502 000 ₽/мес.

Прямая аренда (от года)

6 711 $/мес.
5 663 /мес.
Цена за метр
17 512 ₽ в год
Налог
УСН
Комиссия
нет
Коммунальные платежи
не включены
Эксплуатационные расходы
не включены
Агентство недвижимости
Документы проверены