Мы используем куки-файлы. Соглашение об использовании
Помещение свободного назначения, 113 м²

Сдается помещение свободного назначения, 113 м²

Площадь113 м²
Этаж1 из 25
ПомещениеСвободно
Отчёт о привлекательности объектаУзнайте, насколько помещение и район подходят для вашего бизнеса
Что входит в отчёт
  • Охват населения
  • Пешеходный трафик
  • Автомобильный трафик
  • Средний бюджет семьи по району
  • Арендные ставки рядом
  • Точки притяжения
  • Конкуренты в радиусе 1 км
  • Рекомендации по выбору места для бизнеса
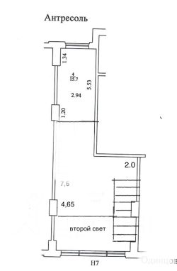
Для Вашего бизнеса предлагаю коммерческое помещение свободного назначения на первом этаже с отдельным входом, которое : - интересно в плане осуществления дизайнерских идей, наличие антресольного этажа добавляет простора для реализации задуманного, - удобно в плане локации, 5 минут пешком до метро Кунцевская, первая линия домов по улице Кастанаевская, -позволяет организовать любой бизнес, например, кафе, салон красоты, офис, магазин, салон, шоу рум, учебный центр и тд -технически подготовлено , наличие всех необходимых инженерных коммуникаций. Помещение светлое с большими панорамными окнами. Площадь первого этажа составляет 70 м2, входная группа- высота потолков 6,3м далее 3,2 м. Площадь второго этажа 43,2м2 высота потолка входной группы 2,2 м, далее 3,5м. Предоставляются арендные каникулы на ремонт помещения. Приходите и убедитесь сами!
lock

Войдите или зарегистрируйтесь
для просмотра информации

Просматривайте условия сделки и всю информацию об объекте
Сохраняйте фильтры в поиске и не вводите заново
Доступ к избранному с любого устройства
Неограниченное добавление в избранное
Позвоните автору
Вам ответят на все вопросы
Остались вопросы по объявлению?
Позвоните владельцу объявления и уточните необходимую информацию.
  • Инфраструктура
  • Похожие рядом
  • Тип зданияЖилой комплекс
  • Общая площадь113 м²
Приточная вентиляция
Центральное кондиционирование
Центральное отопление
Спринклерная система пожаротушения
Помощь надёжных риелторов
Риелтор партнёр Циан поможет купить или продать любую недвижимость
СобственникID 15993230
  • Предоставил паспорт
250 000 ₽/мес.

Прямая аренда (от года), минимальный срок аренды 11 месяцев, доступны арендные каникулы, обеспечительный платёж 250000 ₽, предоплата за 1 месяц

3 341 $/мес.
2 856 /мес.
Цена за метр
26 549 ₽ в год
Налог
УСН
Комиссия
нет
Коммунальные платежи
не включены
Эксплуатационные расходы
не включены
СобственникID 15993230
  • Предоставил паспорт