Мы используем куки-файлы. Соглашение об использовании
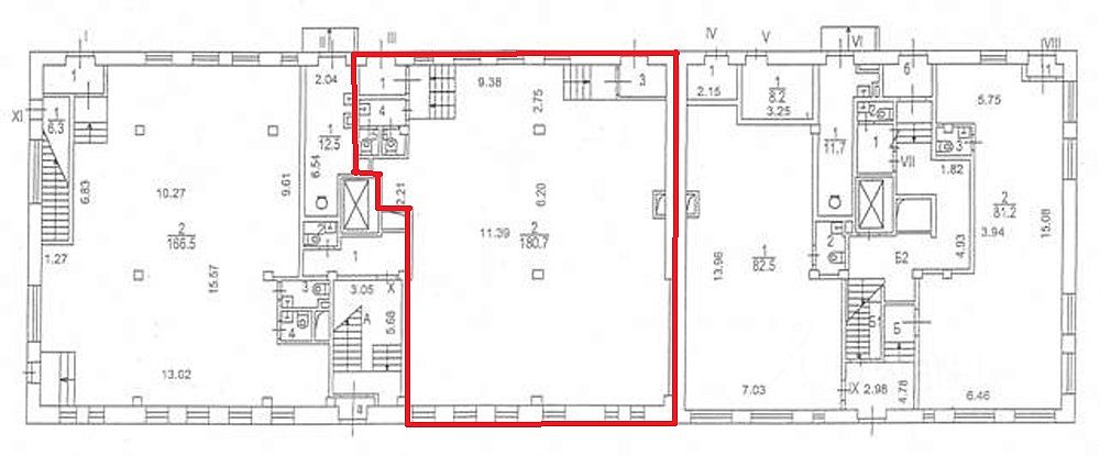
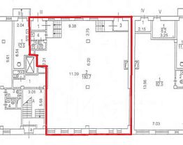
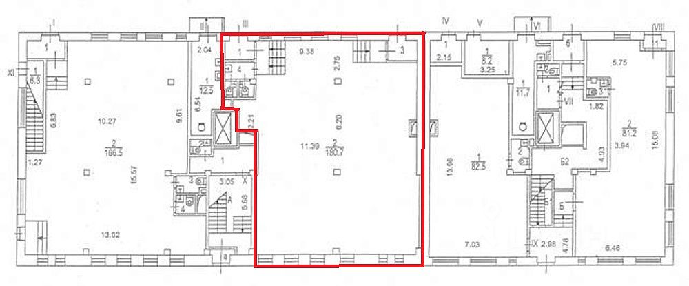
Помещение свободного назначения, 192,6 м²

Сдается помещение свободного назначения, 192,6 м²

Площадь192,6 м²
Этаж1 из 5
Отчёт о привлекательности объектаУзнайте, насколько помещение и район подходят для вашего бизнеса
Что входит в отчёт
  • Охват населения
  • Пешеходный трафик
  • Автомобильный трафик
  • Средний бюджет семьи по району
  • Арендные ставки рядом
  • Точки притяжения
  • Конкуренты в радиусе 1 км
  • Рекомендации по выбору места для бизнеса
Аренда помещения в полностью новом реконструированном доме с сохранением исторического облика здания. Реконструкция была произведена на основании распоряжения правительства Москвы. Монолитно-кирпичный дом с подземным паркингом, в строительстве которого использовались только инновационные и высокотехнологичные материалы, при этом зданию был сохранен исторический облик. Дом располагается в самом центре исторической Москвы, в пешей доступности от Кремля и Тверской площади. Клубный дом на 19 квартир. Помещение готово к использованию. Высота потолков 3,4 м. Дом находится в тихом переулке между Цветным бульваром и ул. Сретенка. Идеально подходит под Офис, Торговлю или Медицинский центр. Прямая аренда. Коммунальные расходы оплачиваются отдельно. Собственность.
lock

Войдите или зарегистрируйтесь
для просмотра информации

Просматривайте условия сделки и всю информацию об объекте
Сохраняйте фильтры в поиске и не вводите заново
Доступ к избранному с любого устройства
Неограниченное добавление в избранное
Позвоните автору
Вам ответят на все вопросы
Остались вопросы по объявлению?
Позвоните владельцу объявления и уточните необходимую информацию.
  • Инфраструктура
  • Похожие рядом
  • Тип зданияОсобняк
  • Общая площадь192,6 м²
Естественная вентиляция
Местное кондиционирование
Центральное отопление
Сигнализация
Помощь надёжных риелторов
Риелтор партнёр Циан поможет купить или продать любую недвижимость
754 350 ₽/мес.

Прямая аренда (от года), минимальный срок аренды 11 месяцев, предоплата за 2 месяца

10 314 $/мес.
8 742 /мес.
Цена за метр
47 000 ₽ в год
Налог
НДС включен: 136 030 ₽
Комиссия
нет
Коммунальные платежи
не включены
Эксплуатационные расходы
не включены
Агентство недвижимости
Суперагент