Мы используем куки-файлы. Соглашение об использовании

Сдается офис, 108 м²

    Площадь108 м²
    Этаж2 из 13
    Отчёт о привлекательности объектаУзнайте, насколько помещение и район подходят для вашего бизнеса
    Что входит в отчёт
    • Охват населения
    • Пешеходный трафик
    • Автомобильный трафик
    • Средний бюджет семьи по району
    • Арендные ставки рядом
    • Точки притяжения
    • Конкуренты в радиусе 1 км
    • Рекомендации по выбору места для бизнеса
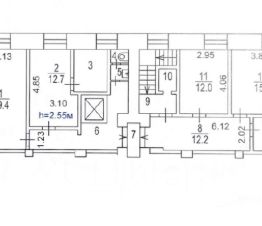
    Дмитрий. БЕЗ КОМИССИИ. Предлагаем Вам офисные помещения в жилом доме по адресу: Москва, Варшавское шоссе, 16. 1-ая линия Варшавского шоссе. В шаговой доступности метро Верхние котлы. Небольшой бесплатный паркинг, а так же, предлагаем за отдельную плату 2 машиноместа (за 1 мм 2.000р/год) на территории жилого дома. Помещение представлено в виде длинного коридора, соединяющего между собой 5 (пять) изолированных кабинетов переменной площади (от 11.5м2 до 18.5м2). Мокрая точка - имеется. Абсолютно новый ремонт. От лишнего имущества освободим. Окна в каждом из помещений (открываются). Кондиционера - нет. Отопление - регулируемое. Доступ - круглосуточный. Собственник - юр.лицо. Юр. адрес - не предоставляем. В остальном, на все существующие вопросы готов ответить по телефону. Просмотр по договоренности.
    lock

    Войдите или зарегистрируйтесь
    для просмотра информации

    Просматривайте условия сделки и всю информацию об объекте
    Сохраняйте фильтры в поиске и не вводите заново
    Доступ к избранному с любого устройства
    Неограниченное добавление в избранное
    Позвоните автору
    Вам ответят на все вопросы
    Остались вопросы по объявлению?
    Позвоните владельцу объявления и уточните необходимую информацию.
    • Инфраструктура
    • Похожие рядом
    • Общая площадь108 м²
    Центральное отопление
    Сигнализация
    Помощь надёжных риелторов
    Риелтор партнёр Циан поможет купить или продать любую недвижимость
    Автор объявленияДмитрий Мазыкин
    Суперагент
  • 4,3・29
  • 6 лет 3 месяца на Циане
  • 8 объявлений
  • 150 000 ₽/мес.

    Прямая аренда (от года), минимальный срок аренды 11 месяцев, обеспечительный платёж 150000 ₽, предоплата за 1 месяц

    2 119 $/мес.
    1 801 /мес.
    Цена за метр
    16 667 ₽ в год
    Налог
    УСН
    Комиссия
    нет
    Коммунальные платежи
    не включены
    Эксплуатационные расходы
    не включены
    Автор объявленияДмитрий Мазыкин
    Суперагент