Мы используем куки-файлы. Соглашение об использовании
Площади50 – 595,8 м²
Этаж10 из 13
Парковка89 мест
КлассA
Отчёт о привлекательности объектаУзнайте, насколько помещение и район подходят для вашего бизнеса
Что входит в отчёт
  • Охват населения
  • Пешеходный трафик
  • Автомобильный трафик
  • Средний бюджет семьи по району
  • Арендные ставки рядом
  • Точки притяжения
  • Конкуренты в радиусе 1 км
  • Рекомендации по выбору места для бизнеса
Доступно 5 площадей
50 м²
4 этаж
136 000 ₽/мес.
32 640 ₽/м² в год
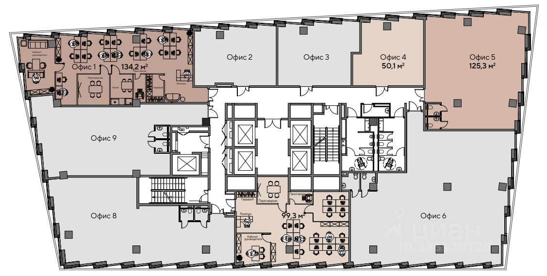
125,3 м²
5 этаж
340 816 ₽/мес.
32 640 ₽/м² в год
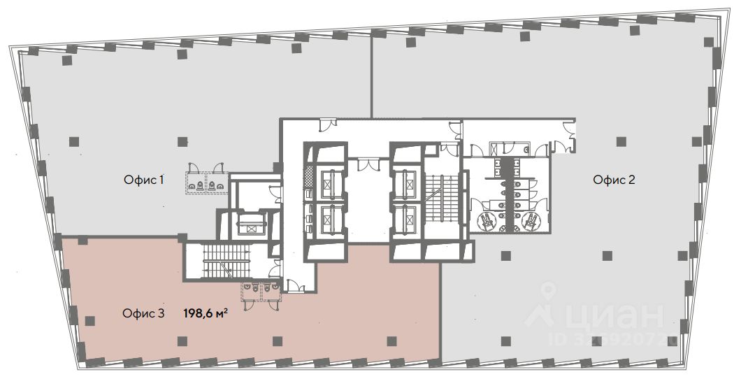
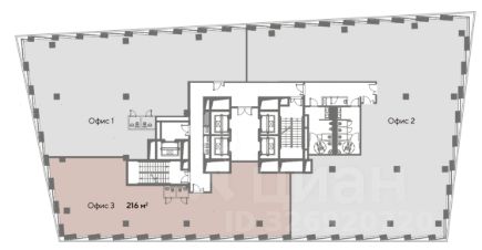
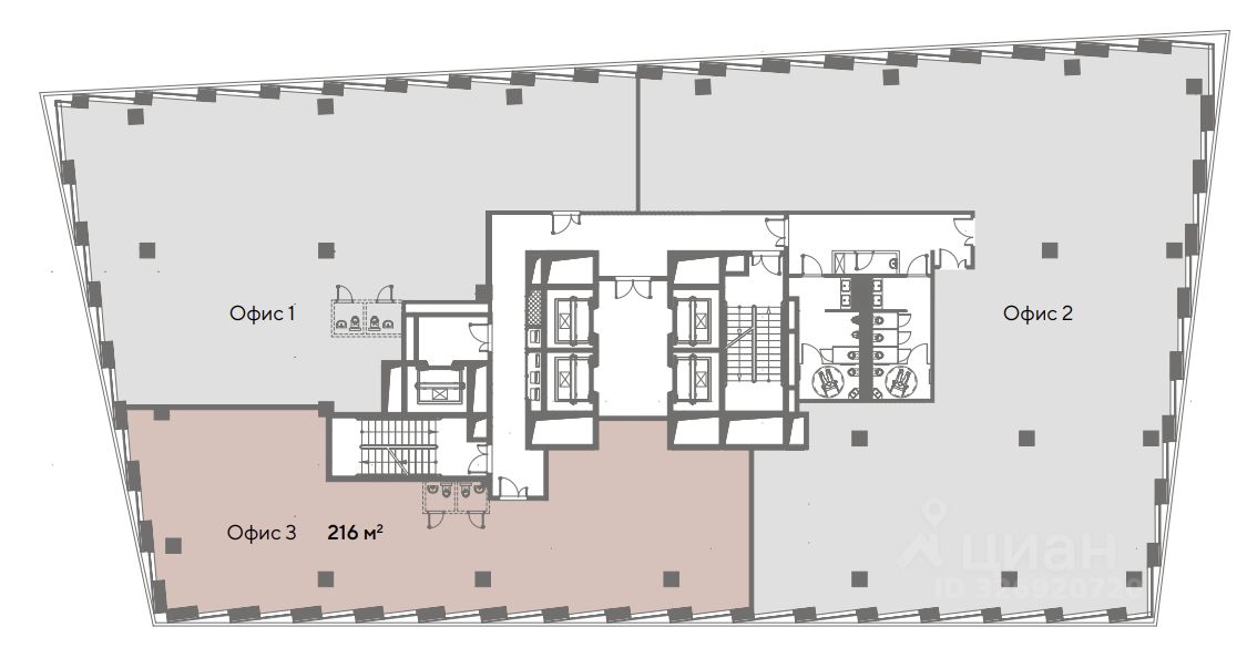
216 м²
8 этаж
587 520 ₽/мес.
32 640 ₽/м² в год
339,8 м²
5 этаж
866 490 ₽/мес.
30 600 ₽/м² в год
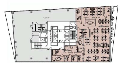
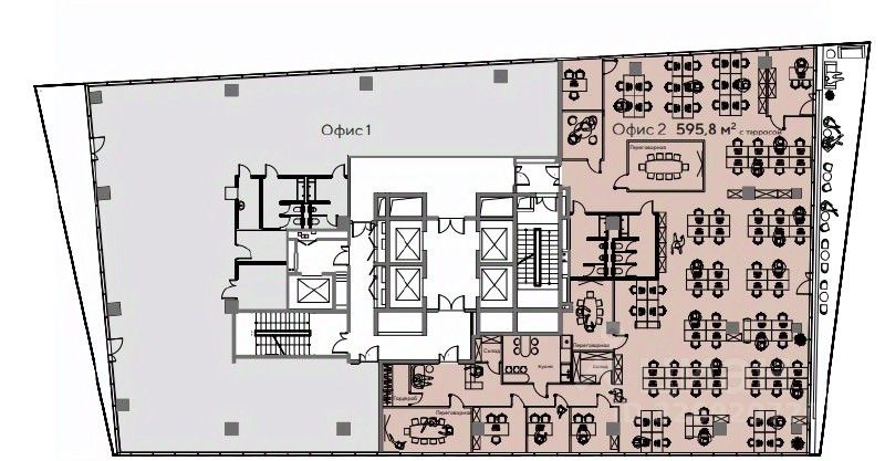
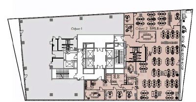
595,8 м²
10 этаж
1 620 576 ₽/мес.
32 640 ₽/м² в год
Панорамные офисы в аренду от Собственника. Предоставляем арендные каникулы на время проведения ремонта. Преимущества помещения: — Высокие потолки — 3,6 м — Открывающие окна — Развитая инфраструктура бизнес-центра — Торговые центры, кафе и рестораны в шаговой доступности — Подземный паркинг — 5 минут пешком до м. Калужская — 5 минут пешком до м. Воронцовская Аренда напрямую от собственника. Без комиссии для арендатора. Эксплуатационные платежи оплачиваются дополнительно. Остались вакантные блоки от 50 кв.м до 2500 кв.м
lock

Войдите или зарегистрируйтесь
для просмотра информации

Просматривайте условия сделки и всю информацию об объекте
Сохраняйте фильтры в поиске и не вводите заново
Доступ к избранному с любого устройства
Неограниченное добавление в избранное
Позвоните автору
Вам ответят на все вопросы
Остались вопросы по объявлению?
Позвоните владельцу объявления и уточните необходимую информацию.
  • Инфраструктура
  • Похожие рядом
Помощь надёжных риелторов
Риелтор партнёр Циан поможет купить или продать любую недвижимость
136 000 – 1 620 576 ₽/мес.
от 1 950 до 23 236 $/мес.
от 1 700 до 20 257 €/мес.
Цена за метр
от 30 600 ₽ в год
Налог
НДС включен: 292 235 ₽
Комиссия
нет
Коммунальные платежи
не включены
Эксплуатационные расходы
не включены
Агентство недвижимости
Документы проверены
На Циан
1 год
Объектов в работе
35