Мы используем куки-файлы. Соглашение об использовании
Помещение свободного назначения, от 216 до 226,5 м²

Сдается помещение свободного назначения (А)

Площади216 – 226,5 м²
Этаж2 из 13
КлассA
Отчёт о привлекательности объектаУзнайте, насколько помещение и район подходят для вашего бизнеса
Что входит в отчёт
  • Охват населения
  • Пешеходный трафик
  • Автомобильный трафик
  • Средний бюджет семьи по району
  • Арендные ставки рядом
  • Точки притяжения
  • Конкуренты в радиусе 1 км
  • Рекомендации по выбору места для бизнеса
Доступно 2 площади
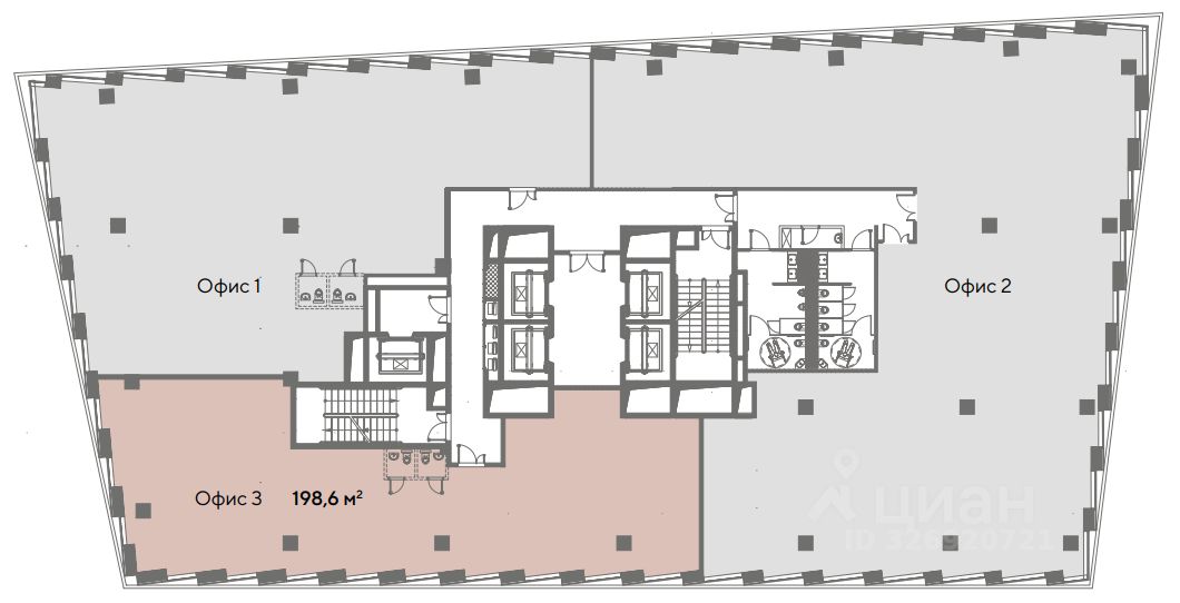
216 м²
8 этаж
587 520 ₽/мес.
32 640 ₽/м² в год
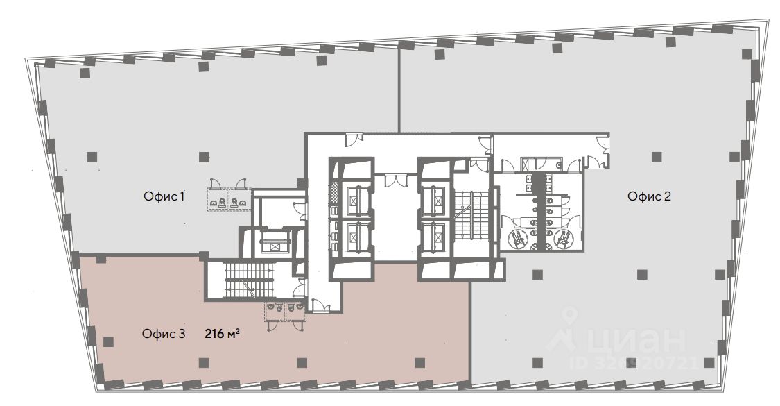
226,5 м²
2 этаж
616 080 ₽/мес.
32 640 ₽/м² в год
Помещения свободного назначения в аренду от собственника. Предлагаются просторные и светлые помещения, идеально подходящие для размещения студии, клиники, учебного центра, стоматологии, офиса и других форматов бизнеса. Мы предоставляем арендные каникулы на время проведения ремонта. Преимущества помещения: — Высокие потолки 3,6 м — Возможность установки двери из лифтового холла — прямой доступ — Открывающиеся окна — Развитая инфраструктура бизнес-центра — Торговые центры, кафе и рестораны в шаговой доступности — Подземный паркинг Локация: — 5 минут пешком до метро "Калужская" — 5 минут пешком до метро "Воронцовская" Аренда напрямую от собственника — без комиссии для арендатора. Эксплуатационные платежи оплачиваются дополнительно.
lock

Войдите или зарегистрируйтесь
для просмотра информации

Просматривайте условия сделки и всю информацию об объекте
Сохраняйте фильтры в поиске и не вводите заново
Доступ к избранному с любого устройства
Неограниченное добавление в избранное
Позвоните автору
Вам ответят на все вопросы
Остались вопросы по объявлению?
Позвоните владельцу объявления и уточните необходимую информацию.
  • Инфраструктура
  • Похожие рядом
Помощь надёжных риелторов
Риелтор партнёр Циан поможет купить или продать любую недвижимость
587 520 – 616 080 ₽/мес.
от 8 208 до 8 607 $/мес.
от 6 912 до 7 248 €/мес.
Цена за метр
от 32 640 ₽ в год
Налог
НДС включен: 111 096 ₽
Комиссия
нет
Коммунальные платежи
не включены
Эксплуатационные расходы
не включены
Агентство недвижимости
Документы проверены
На Циан
1 год
Объектов в работе
37