Мы используем куки-файлы. Соглашение об использовании
Помещение свободного назначения, 161,8 м²

Сдается помещение свободного назначения, 161,8 м²

Площадь161,8 м²
Этаж-1 из 4
Отчёт о привлекательности объектаУзнайте, насколько помещение и район подходят для вашего бизнеса
Что входит в отчёт
  • Охват населения
  • Пешеходный трафик
  • Автомобильный трафик
  • Средний бюджет семьи по району
  • Арендные ставки рядом
  • Точки притяжения
  • Конкуренты в радиусе 1 км
  • Рекомендации по выбору места для бизнеса
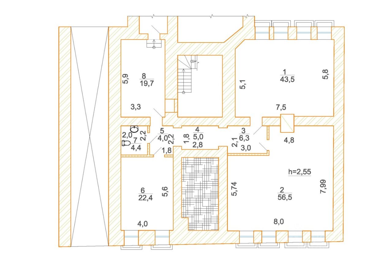
Эксклюзивное предложение от Собственника. Без комиссии для Арендатора. Предлагается уникальное просторное помещение с отдельным входом, общей площадью 161,8 кв.м. в капитальном обновлении дизайнерских решений — с использованием дорогих материалов и продуманной архитектурой. Расположено в историческом центре Москвы, в шаге от метро Кропоткинская, Парк Культуры и Арбатская. Дом, спроектированный А.Д. Муравьёвым, полностью реконструирован: фасад украшен лепниной, мозаикой и коваными элементами; двор огорожен и благоустроен, доступна охраняемая парковка и система видеонаблюдения. Особенности: * Отдельный вход со двора * Окна на две стороны * Санузел * Кирпичные стены * Кондиционеры * Парковка на огороженной территории Характеристики: * Помещение на цокольном этаже * Общая площадь: 161,8 кв.м * Планировка: два просторных зала (43,5 кв.м и 56,5 кв.м), кабинет (22,4 кв.м), входная группа (19,7 кв.м), санузел
lock

Войдите или зарегистрируйтесь
для просмотра информации

Просматривайте условия сделки и всю информацию об объекте
Сохраняйте фильтры в поиске и не вводите заново
Доступ к избранному с любого устройства
Неограниченное добавление в избранное
Позвоните автору
Вам ответят на все вопросы
Остались вопросы по объявлению?
Позвоните владельцу объявления и уточните необходимую информацию.
  • Инфраструктура
  • Похожие рядом
  • Общая площадь161,8 м²
Приточная вентиляция
Местное кондиционирование
Центральное отопление
Гидрантная система пожаротушения
Помощь надёжных риелторов
Риелтор партнёр Циан поможет купить или продать любую недвижимость
539 334 ₽/мес.

Прямая аренда (от года), минимальный срок аренды 12 месяцев, предоплата за 1 месяц

7 203 $/мес.
6 144 /мес.
Цена за метр
40 000 ₽ в год
Налог
НДС включен: 97 256 ₽
Комиссия
нет
Коммунальные платежи
не включены
Эксплуатационные расходы
включены
Агентство недвижимости
Суперагент