Мы используем куки-файлы. Соглашение об использовании
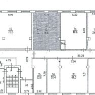
Площадь46,5 м²
Этаж3 из 4
Парковка999 мест
КлассB
Отчёт о привлекательности объектаУзнайте, насколько помещение и район подходят для вашего бизнеса
Что входит в отчёт
  • Охват населения
  • Пешеходный трафик
  • Автомобильный трафик
  • Средний бюджет семьи по району
  • Арендные ставки рядом
  • Точки притяжения
  • Конкуренты в радиусе 1 км
  • Рекомендации по выбору места для бизнеса
Прямая аренда от собственника! 5 минут пешком от м. Ленинский проспект и площади Гагарина. Прямо на пересечении ТТК и ул. Вавилова. Аренда офисного помещения 46,5 кв. м. Освобождается с 05.07.2026г. 1 светлая комната. Просторный офис, светлый. Выполнен качественный ремонт. С высокими потолками - 3 м и большими окнами - пвх. Находится в самом сердце Бизнес-парка. Рядом выезд на ТТК, кафе. Стены - обои под покраску, дверь металлическая, с/у на этаже. Есть отопление, пожарная сигнализация, лифт. НДС, коммунальные услуги, сервисный сбор включены. Обеспечительный взнос за 2 месяца. Срок аренды - от 11 месяцев. Круглосуточная охрана. Профессиональная Управляющая Компания. Несколько независимых провайдеров связи. Наземная охраняемая парковка на 1000 м/м. Комиссия агентствам недвижимости по этому помещению не выплачивается.
lock

Войдите или зарегистрируйтесь
для просмотра информации

Просматривайте условия сделки и всю информацию об объекте
Сохраняйте фильтры в поиске и не вводите заново
Доступ к избранному с любого устройства
Неограниченное добавление в избранное
Позвоните автору
Вам ответят на все вопросы
Остались вопросы по объявлению?
Позвоните владельцу объявления и уточните необходимую информацию.
  • Инфраструктура
  • Похожие рядом
Помощь надёжных риелторов
Риелтор партнёр Циан поможет купить или продать любую недвижимость
Агентство недвижимости
Суперагент
127 875 ₽/мес.

Прямая аренда (от года), минимальный срок аренды 11 месяцев, доступны арендные каникулы, обеспечительный платёж 255750 ₽, предоплата за 1 месяц

1 806 $/мес.
1 536 /мес.
Цена за метр
33 000 ₽ в год
Налог
НДС включен: 23 059 ₽
Комиссия
нет
Коммунальные платежи
включены
Эксплуатационные расходы
включены
Агентство недвижимости
Суперагент
На Циан
8 лет
Объектов в работе
27