Мы используем куки-файлы. Соглашение об использовании
Помещение свободного назначения, 117 м²

Сдается помещение свободного назначения, 117 м²

Площадь117 м²
Этаж1 из 8
ПомещениеСвободно
Отчёт о привлекательности объектаУзнайте, насколько помещение и район подходят для вашего бизнеса
Что входит в отчёт
  • Охват населения
  • Пешеходный трафик
  • Автомобильный трафик
  • Средний бюджет семьи по району
  • Арендные ставки рядом
  • Точки притяжения
  • Конкуренты в радиусе 1 км
  • Рекомендации по выбору места для бизнеса
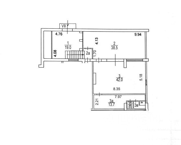
Сдается нежилое помещение по адресу: г. Москва, ул. Юровская, д. 92. Общая площадь 117 кв.м. Отдельный вход. Просторная входная группа, 2 зала, раздевалка, душевая, санузл. Прямая аренда. Просмотры по договоренности.
lock

Войдите или зарегистрируйтесь
для просмотра информации

Просматривайте условия сделки и всю информацию об объекте
Сохраняйте фильтры в поиске и не вводите заново
Доступ к избранному с любого устройства
Неограниченное добавление в избранное
Позвоните автору
Вам ответят на все вопросы
Остались вопросы по объявлению?
Позвоните владельцу объявления и уточните необходимую информацию.
  • Инфраструктура
  • Похожие рядом
  • Общая площадь117 м²
Местное кондиционирование
Центральное отопление
Помощь надёжных риелторов
Риелтор партнёр Циан поможет купить или продать любую недвижимость
180 000 ₽/мес.

Прямая аренда (от года), обеспечительный платёж 180000 ₽, предоплата за 1 месяц

2 367 $/мес.
2 008 /мес.
Цена за метр
18 462 ₽ в год
Налог
УСН
Комиссия
30%
Коммунальные платежи
не включены
Эксплуатационные расходы
не включены
Агентство недвижимости
Суперагент